ID Lokasi : KPN1820152021T001
JAWA TIMUR, KAB MALANG, Pakis, Pakisjajar
PT GRIYA KARYA TAMA
PERKUMPULAN ASOSIASI PENGEMBANG PERUMAHAN DAN PERMUKIMAN SELURUH INDONESIA
(APERSI)
Subsidi : 0 Unit
Terjual Subsidi : 55 Unit
Komersil : 0 Unit
Terjual Komersil : 1 Unit
Lihat Siteplan Digital




Harga: Rp 150.000.000
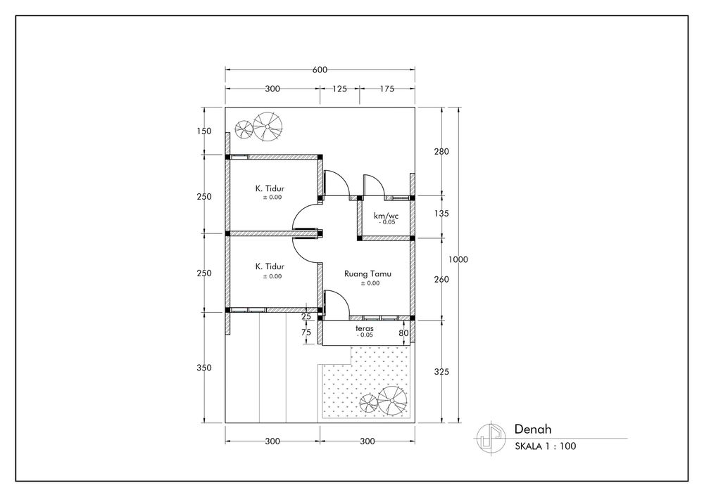
Luas Bangunan: 28m 2
Luas Lahan: 60m 2
Kamar Tidur: 2
Kamar Mandi: 1
a. Atap
Galvalum genteng di cat
b. Dinding
Bata diplester finishing cat
c. Lantai & Pondasi
Keramik 40X40 motif & Footplat