ID Lokasi : KPN2520012023T001
JAWA TIMUR, KAB MALANG, Lawang, Sidoluhur
PT BHAVANA MITRA ABADI
PERKUMPULAN ASOSIASI PENGEMBANG PERUMAHAN DAN PERMUKIMAN SELURUH INDONESIA
(APERSI)
Subsidi : 148 Unit
Terjual Subsidi : 178 Unit
Komersil : 296 Unit
Terjual Komersil : 7 Unit
Lihat Siteplan Digital




Harga: Rp 162.000.000
Luas Bangunan: 29m 2
Luas Lahan: 60m 2
Kamar Tidur: 2
Kamar Mandi: 1
a. Atap
Rangka Atap Galvalum C 0.75 ex Kencana ; Reng Galvalum 0.3 ex Kencana ; Genteng Beton Flat ; Bubungan Genteng Beton
b. Dinding
Bata Hebel 10 Cm ; Acian ; Cat tembok interior ex Propan
c. Lantai & Pondasi
Keramik ex Asiatile Putih 40x40 (Teras, R Tamu, R Tidur) ; Keramik ex Asiatile 20x20 (Lantai KM/WC) ; Keramik ex Roman 20x25 (Dinding KM/WC) & Pondasi Footplate (70x70)


Harga: Rp 310.000.000
Luas Bangunan: 38m 2
Luas Lahan: 80m 2
Kamar Tidur: 2
Kamar Mandi: 1
a. Atap
Rangka Atap Galvalum
Genteng Beton Flat
b. Dinding
Bata Ringan 10 Cm
c. Lantai & Pondasi
Granit 60x60 & Batu kali


Harga: Rp 517.000.000
Luas Bangunan: 55m 2
Luas Lahan: 84m 2
Kamar Tidur: 2
Kamar Mandi: 1
a. Atap
Rangka atap galvalum
Genteng beton flat
b. Dinding
Bata ringan 10 cm
c. Lantai & Pondasi
Granit 60x60 & Batu kali


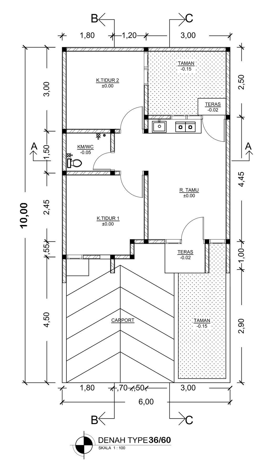
Harga: Rp 235.000.000
Luas Bangunan: 36m 2
Luas Lahan: 60m 2
Kamar Tidur: 2
Kamar Mandi: 1
a. Atap
Rangka atap galvalum Genteng beton flat
b. Dinding
Bata ringan 10 cm
c. Lantai & Pondasi
Granit 60x60 & Batu kali


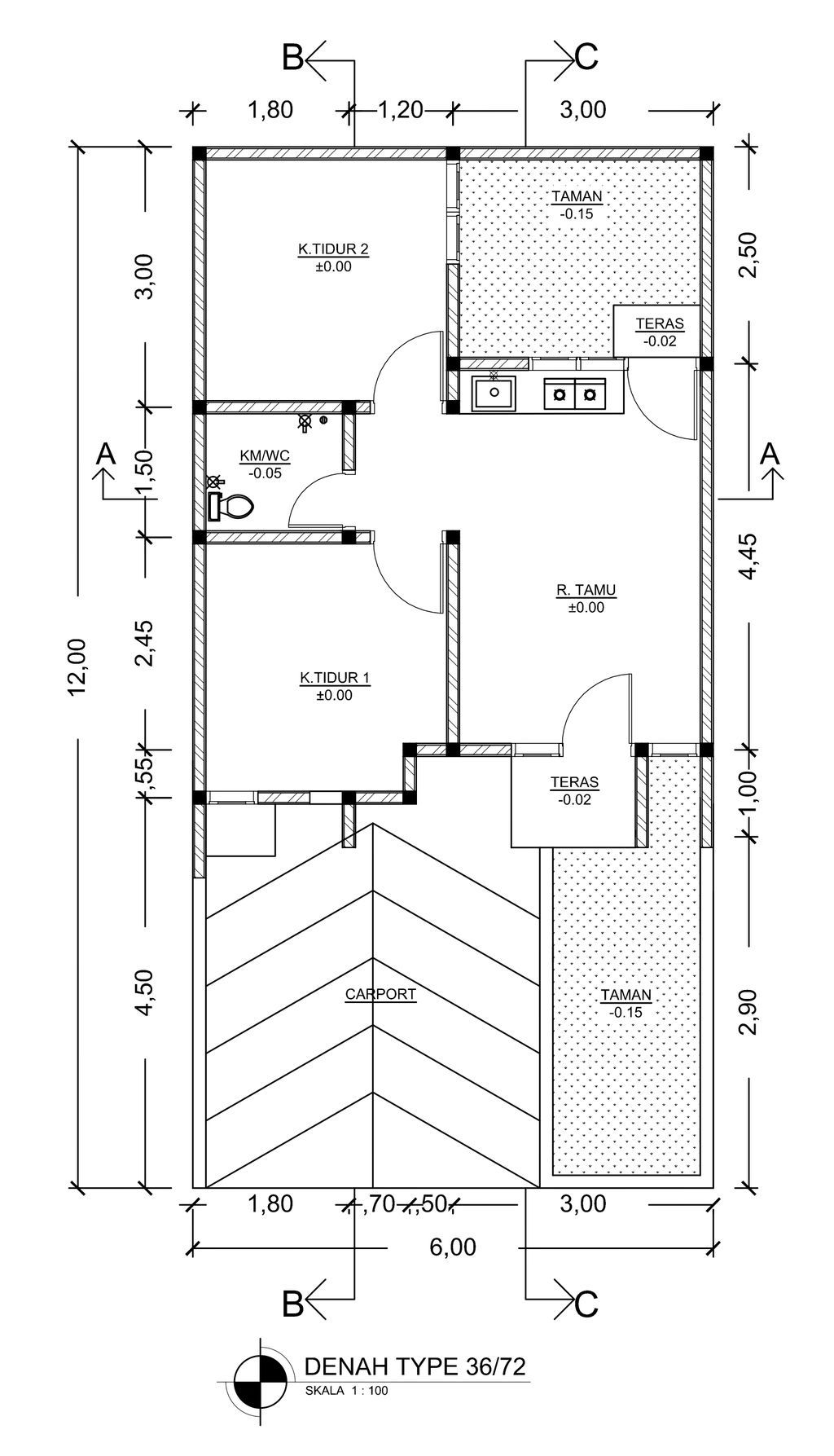
Harga: Rp 295.000.000
Luas Bangunan: 36m 2
Luas Lahan: 72m 2
Kamar Tidur: 2
Kamar Mandi: 1
a. Atap
Rangka atap galvalum Genteng beton flat
b. Dinding
Bata ringan 10 cm
c. Lantai & Pondasi
Granit 60x60 & Batu kali


Harga: Rp 365.000.000
Luas Bangunan: 45m 2
Luas Lahan: 72m 2
Kamar Tidur: 2
Kamar Mandi: 1
a. Atap
Rangka atap galvalum Genteng beton flat
b. Dinding
Bata ringan 10 cm
c. Lantai & Pondasi
Granit 60x60 & Batu kali