ID Lokasi : KRB0620012020T004
ACEH, KAB ACEH TAMIANG, Kejuruan Muda, Bukit Rata
RANANDA PRATAMA GROUP
IKATAN DEWAN PENGEMBANG RUMAH BERDIKARI
(IKADERI)
Subsidi : 29 Unit
Terjual Subsidi : 59 Unit
Komersil : 0 Unit
Terjual Komersil : 0 Unit
Lihat Siteplan Digital




Harga: Rp 150.500.000
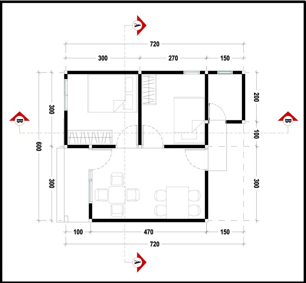
Luas Bangunan: 36m 2
Luas Lahan: 96m 2
Kamar Tidur: 2
Kamar Mandi: 1
a. Atap
Rangka Baja Ringan
b. Dinding
Batu Bata Merah
c. Lantai & Pondasi
Keramik & Batu Gunung


Harga: Rp 164.000.000
Luas Bangunan: 36m 2
Luas Lahan: 95m 2
Kamar Tidur: 2
Kamar Mandi: 1
a. Atap
Atap Genteng Metal
b. Dinding
Pasangan Dinding Batu Bata diplester dan dicat
c. Lantai & Pondasi
Lantai Keramik 40 x 40 cm & Pasangan Pondasi Batu Kali