CAKRAWALA UTAMA RESIDENCE 4

ID Lokasi : KRG1320082024T001
JAWA TENGAH, KAB KARANGANYAR, Gondangrejo, Karangturi
CAKRAWALA PRATAMA MANUNGGAL
PERKUMPULAN ASOSIASI PENGEMBANG PERUMAHAN DAN PERMUKIMAN SELURUH INDONESIA (APERSI)


Status Rumah

Subsidi : 2 Unit

Terjual Subsidi : 85 Unit

Komersil : 0 Unit

Terjual Komersil : 0 Unit

Lihat Siteplan Digital

Peta Lokasi



Kantor Pemasaran

TAMBAKSEGARAN RT 03 RW 04 no. 0 JAWA TENGAH, KAB SUKOHARJO, Sukoharjo, Banmati

Telp : 082138622225

Email : ptmitraabadinusantara@gmail.com

Website :

Foto Lokasi


foto gerbang perumahan CAKRAWALA UTAMA RESIDENCE 4
Foto Gerbang/Jalan Utama
foto contoh rumah perumahan CAKRAWALA UTAMA RESIDENCE 4
Foto Rumah Contoh
foto posisi tengah perumahan CAKRAWALA UTAMA RESIDENCE 4
Foto Posisi Tengah Lokasi

Tipe Rumah


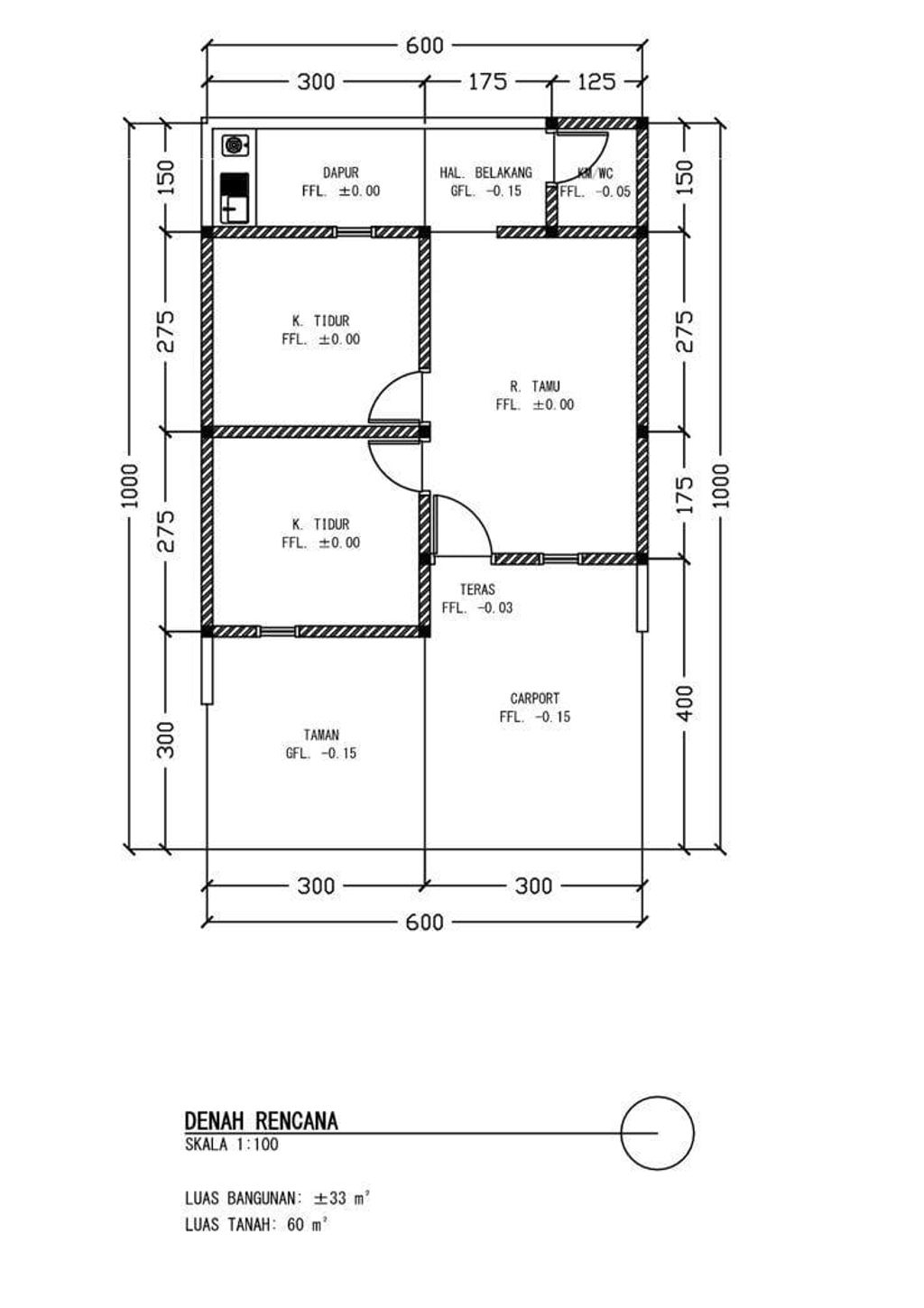
1. Tipe 34 (subsidi)
foto tampak rumah tipe 34 perumahan CAKRAWALA UTAMA RESIDENCE 4
foto denah rumah tipe 34 perumahan CAKRAWALA UTAMA RESIDENCE 4

Harga: Rp 166.000.000

Luas Bangunan: 34m 2

Luas Lahan: 60m 2

Kamar Tidur: 2

Kamar Mandi: 1

Spesifikasi Teknis

a. Atap
BAJARINGAN GENTENG MULTIROOF

b. Dinding
BATA MERAH DIPLESTER DI ACI FINISHING CAT

c. Lantai & Pondasi
KERAMIK 40 X 40 & BATU KALI


Peta Lokasi


Kantor Pemasaran

TAMBAKSEGARAN RT 03 RW 04 no. 0 JAWA TENGAH, KAB SUKOHARJO, Sukoharjo, Banmati

Telp : 082138622225

Email : ptmitraabadinusantara@gmail.com

Website :