GREEN SHEVILLA

ID Lokasi : KRS1620102024T001
JAWA TIMUR, KAB PROBOLINGGO, Pejarakan, Sukokerto
SAFIRA MULTI INDOTEKNIK
PERKUMPULAN ASOSIASI PENGEMBANG PERUMAHAN DAN PERMUKIMAN SELURUH INDONESIA (APERSI)


Status Rumah

Subsidi : 1 Unit

Terjual Subsidi : 0 Unit

Komersil : 0 Unit

Terjual Komersil : 0 Unit

Lihat Siteplan Digital

Peta Lokasi



Kantor Pemasaran

Jl. Raya Panglima Sudirman no. 238 JAWA TIMUR, KAB PROBOLINGGO, Kraksaan, Sidomukti

Telp : 082338483339

Email : rwin150310@gmail.com

Website :

Foto Lokasi


foto gerbang perumahan GREEN SHEVILLA
Foto Gerbang/Jalan Utama
foto contoh rumah perumahan GREEN SHEVILLA
Foto Rumah Contoh
foto posisi tengah perumahan GREEN SHEVILLA
Foto Posisi Tengah Lokasi

Tipe Rumah


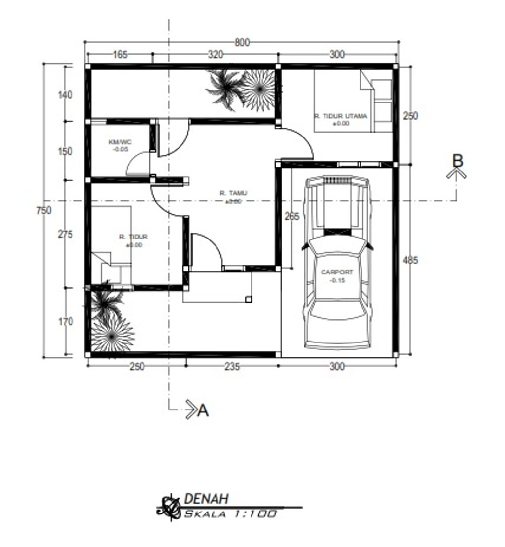
1. Tipe 36 (subsidi)
foto tampak rumah tipe 36 perumahan GREEN SHEVILLA
foto denah rumah tipe 36 perumahan GREEN SHEVILLA

Harga: Rp 166.000.000

Luas Bangunan: 36m 2

Luas Lahan: 78m 2

Kamar Tidur: 2

Kamar Mandi: 1

Spesifikasi Teknis

a. Atap
Rangka Atap Baja Ringan, penutup Genteng

b. Dinding
Dinding Bata Merah

c. Lantai & Pondasi
Keramik 40 x 40 & Pondasi Batu Kali


Peta Lokasi


Kantor Pemasaran

Jl. Raya Panglima Sudirman no. 238 JAWA TIMUR, KAB PROBOLINGGO, Kraksaan, Sidomukti

Telp : 082338483339

Email : rwin150310@gmail.com

Website :