ID Lokasi : KSN0210042025T004
KALIMANTAN TENGAH, KAB KATINGAN, Katingan Hilir, Kasongan Lama
PT MAHKOTA CEMERLANG PERKASA
REAL ESTATE INDONESIA
(REI)
Subsidi : 19 Unit
Terjual Subsidi : 39 Unit
Komersil : 2 Unit
Terjual Komersil : 0 Unit
Lihat Siteplan DigitalJl. Katamso/ Kasongan Lama, RT. 16, RW. 04 no. 1 KALIMANTAN TENGAH, KAB KATINGAN, Katingan Hilir, Kasongan Lama
Telp : 085252725774
Email : mahkotacemerlangperkasa@gmail.com
Website : mcpproperty.id





Harga: Rp 182.000.000
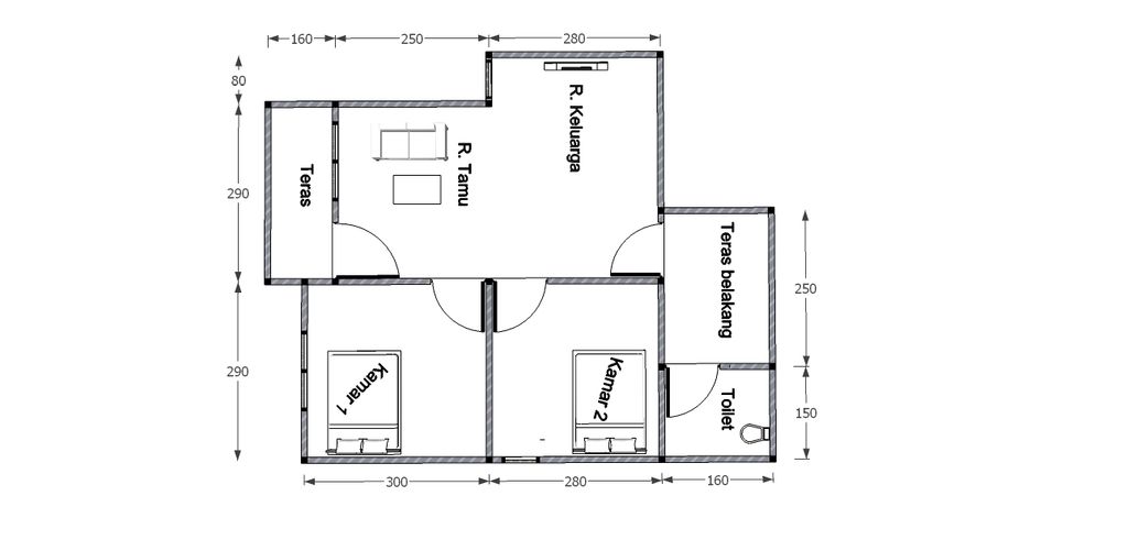
Luas Bangunan: 36m 2
Luas Lahan: 180m 2
Kamar Tidur: 2
Kamar Mandi: 1
a. Atap
Multiroof
b. Dinding
Acian
c. Lantai & Pondasi
Keramik 40x40 & Cakar Ayam
Jl. Katamso/ Kasongan Lama, RT. 16, RW. 04 no. 1 KALIMANTAN TENGAH, KAB KATINGAN, Katingan Hilir, Kasongan Lama
Telp : 085252725774
Email : mahkotacemerlangperkasa@gmail.com
Website : mcpproperty.id