BATUMBULAN ROYAL RESIDENCE I

ID Lokasi : KTN0520292025T001
ACEH, KAB ACEH TENGGARA, Badar, Deleng Megakhe
SELIAN INDAH PROPERTY
REAL ESTATE INDONESIA (REI)


Status Rumah

Subsidi : 11 Unit

Terjual Subsidi : 1 Unit

Komersil : 0 Unit

Terjual Komersil : 0 Unit

Lihat Siteplan Digital

Peta Lokasi



Kantor Pemasaran

JLN. SAKINAH PERUMAHAN BATUMBULAN ROYAL RESIDENCE no. C/01 ACEH, KAB ACEH TENGGARA, Badar, Deleng Megakhe

Telp : 0823-6377-8986

Email : ptselianindahproperty@gmail.com

Website :

Foto Lokasi


foto gerbang perumahan BATUMBULAN ROYAL RESIDENCE I
Foto Gerbang/Jalan Utama
foto contoh rumah perumahan BATUMBULAN ROYAL RESIDENCE I
Foto Rumah Contoh
foto posisi tengah perumahan BATUMBULAN ROYAL RESIDENCE I
Foto Posisi Tengah Lokasi

Tipe Rumah


1. Tipe 36 Kopel (subsidi)
foto tampak rumah tipe 36 Kopel perumahan BATUMBULAN ROYAL RESIDENCE I
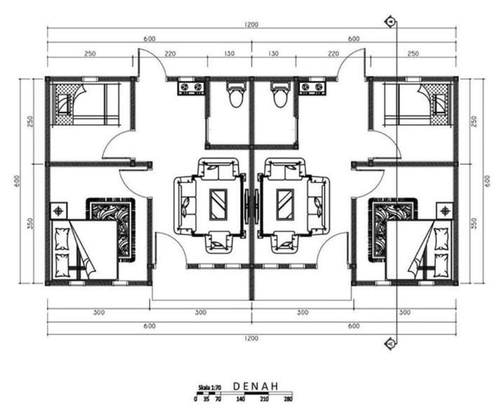
foto denah rumah tipe 36 Kopel perumahan BATUMBULAN ROYAL RESIDENCE I

Harga: Rp 166.000.000

Luas Bangunan: 36m 2

Luas Lahan: 105m 2

Kamar Tidur: 1

Kamar Mandi: 1

Spesifikasi Teknis

a. Atap
Kuda-kuda Kayu Intap & Atap Spandek 0,30

b. Dinding
Pasangan Bata Merah, Plaster dan Cat

c. Lantai & Pondasi
Keramik 50 cm x 50 cm & Batu Kali Serta Beton Bertulang


Peta Lokasi


Kantor Pemasaran

JLN. SAKINAH PERUMAHAN BATUMBULAN ROYAL RESIDENCE no. C/01 ACEH, KAB ACEH TENGGARA, Badar, Deleng Megakhe

Telp : 0823-6377-8986

Email : ptselianindahproperty@gmail.com

Website :