VILLA FAMILY RESIDENCE

ID Lokasi : KTP1610032023T003
KALIMANTAN BARAT, KAB KETAPANG, Delta Pawan, Mulia Baru
UTARI PROPERTI LAND
PROPERTY INDONESIA (PIN)


Status Rumah

Subsidi : 5 Unit

Terjual Subsidi : 15 Unit

Komersil : 0 Unit

Terjual Komersil : 0 Unit

Lihat Siteplan Digital

Peta Lokasi



Kantor Pemasaran

JL SEI KARYA KOMPLEK VILLA FAMILY RESIDENCE no. 1 KALIMANTAN BARAT, KAB KETAPANG, Delta Pawan, Mulia Baru

Telp : 089521477700

Email : ptutaripropertiland@gmail.com

Website :

Foto Lokasi


foto gerbang perumahan VILLA FAMILY RESIDENCE
Foto Gerbang/Jalan Utama
foto contoh rumah perumahan VILLA FAMILY RESIDENCE
Foto Rumah Contoh
foto posisi tengah perumahan VILLA FAMILY RESIDENCE
Foto Posisi Tengah Lokasi

Tipe Rumah


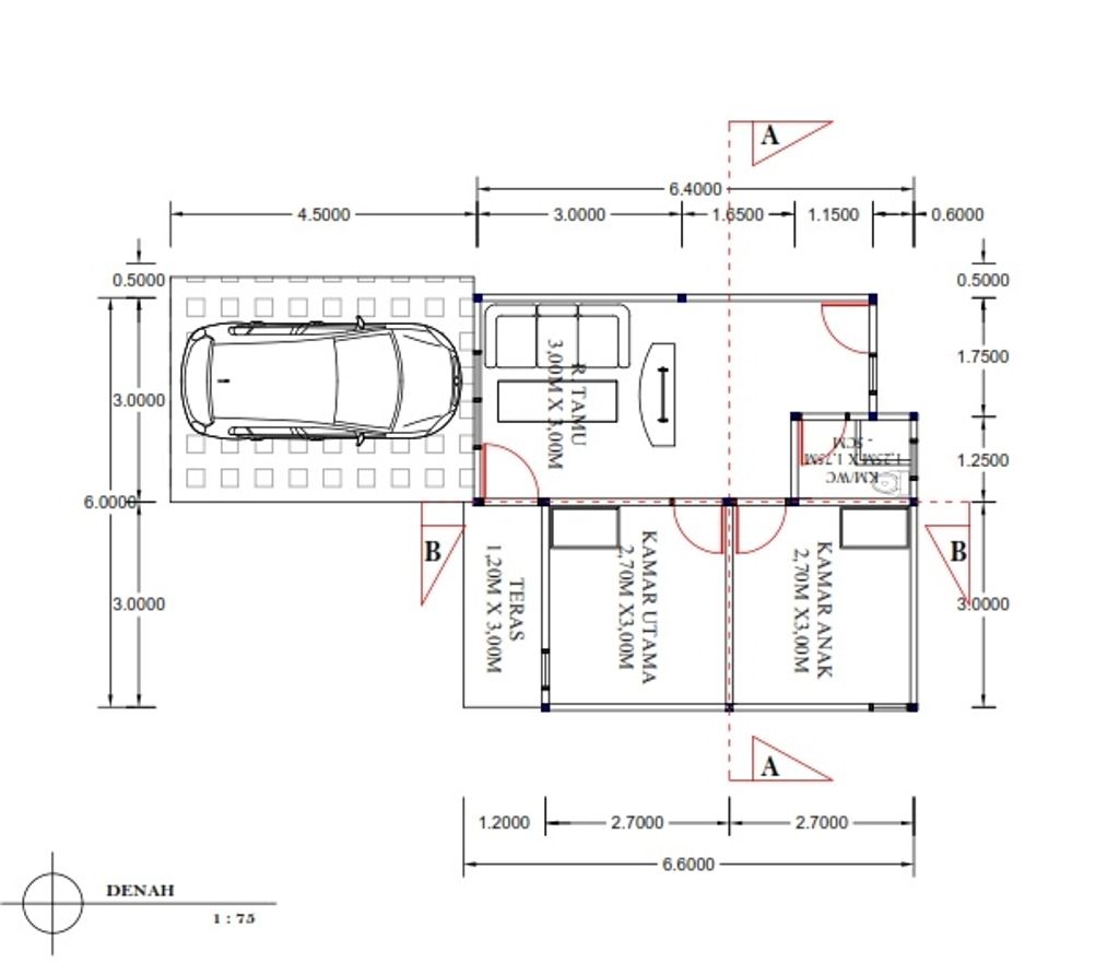
1. Tipe 36 (subsidi)
foto tampak rumah tipe 36 perumahan VILLA FAMILY RESIDENCE
foto denah rumah tipe 36 perumahan VILLA FAMILY RESIDENCE

Harga: Rp 177.000.000

Luas Bangunan: 36m 2

Luas Lahan: 140m 2

Kamar Tidur: 2

Kamar Mandi: 1

Spesifikasi Teknis

a. Atap
SENG ALKAN

b. Dinding
BATAKO PLESTER HALUS FINISHING CAT

c. Lantai & Pondasi
COR GANTUNG FINISHING KERAMIK 40X40 & KAYU BELIAN / ULIN 10X10X1,5


Peta Lokasi


Kantor Pemasaran

JL SEI KARYA KOMPLEK VILLA FAMILY RESIDENCE no. 1 KALIMANTAN BARAT, KAB KETAPANG, Delta Pawan, Mulia Baru

Telp : 089521477700

Email : ptutaripropertiland@gmail.com

Website :