ID Lokasi : KWG2520012020T004
JAWA BARAT, KAB KARAWANG, Kota Baru, Wancimekar
PT SANGGRAHA ARGHATAMA MAS
ASOSIASI PENGEMBANG RUMAH SEDERHANA SEHAT NASIONAL
(APERNAS)
Subsidi : 1 Unit
Terjual Subsidi : 3 Unit
Komersil : 0 Unit
Terjual Komersil : 0 Unit
Lihat Siteplan Digital




Harga: Rp 150.500.000
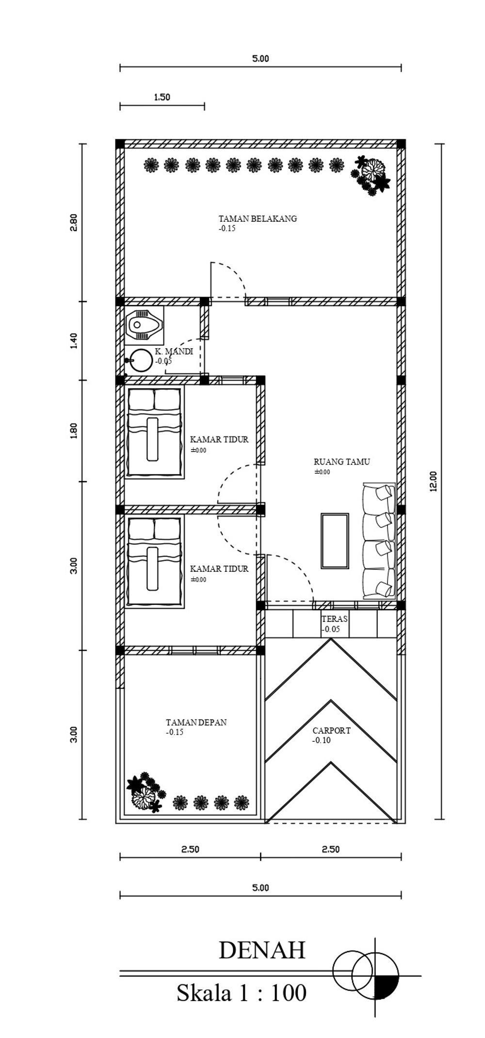
Luas Bangunan: 30m 2
Luas Lahan: 60m 2
Kamar Tidur: 2
Kamar Mandi: 1
a. Atap
-Baja Ringan
-Genteng Jatiwangi
b. Dinding
-Hebel
-PLester,Aci, Cat
c. Lantai & Pondasi
-Keramik Uk 50x50 & -Pondasi Batu Kali