GHAZY ABDUL KARIM BAWAHAB

ID Lokasi : KYB0910012023T001
DKI JAKARTA, KOTA ADM JAKARTA SELATAN, Jagakarsa, Jagakarsa
GHAZY ABDUL KARIM
Tidak ada asosiasi (-)


Status Rumah

Subsidi : 0 Unit

Terjual Subsidi : 0 Unit

Komersil : 0 Unit

Terjual Komersil : 1 Unit

Lihat Siteplan Digital

Peta Lokasi



Kantor Pemasaran

Jl. Jagakarsa , Grand Jagakarsa Ruko No. 2, Rt.014 Rw. 001 no. 2 DKI JAKARTA, KOTA ADM JAKARTA SELATAN, Jagakarsa, Jagakarsa

Telp : 085770697848

Email : fim_adm@yahoo.com

Website :

Foto Lokasi


foto gerbang perumahan GHAZY ABDUL KARIM BAWAHAB
Foto Gerbang/Jalan Utama
foto contoh rumah perumahan GHAZY ABDUL KARIM BAWAHAB
Foto Rumah Contoh
foto posisi tengah perumahan GHAZY ABDUL KARIM BAWAHAB
Foto Posisi Tengah Lokasi

Tipe Rumah


1. Tipe AMERICAN STYLE (komersil)
foto tampak rumah tipe AMERICAN STYLE perumahan GHAZY ABDUL KARIM BAWAHAB
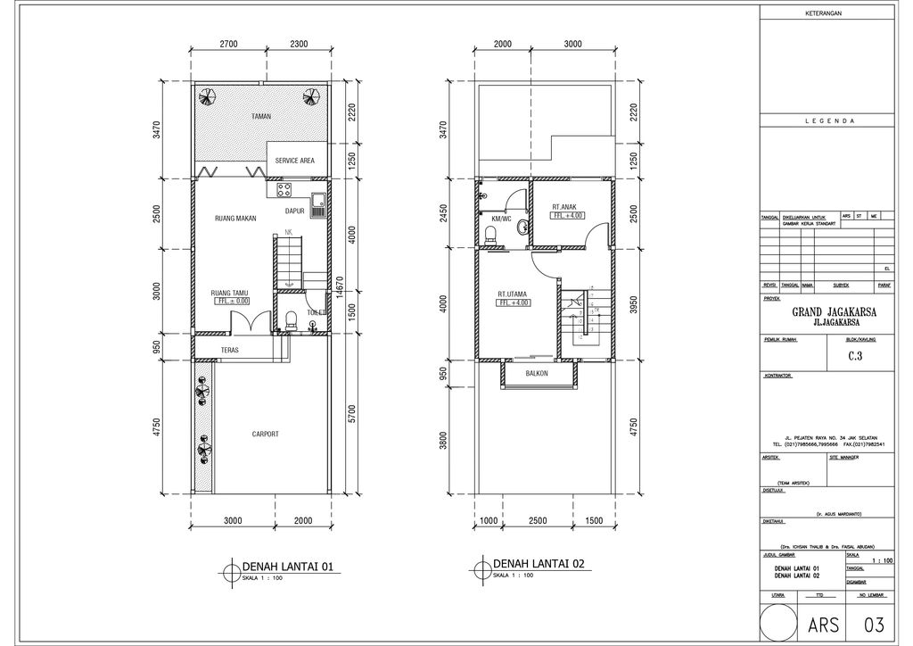
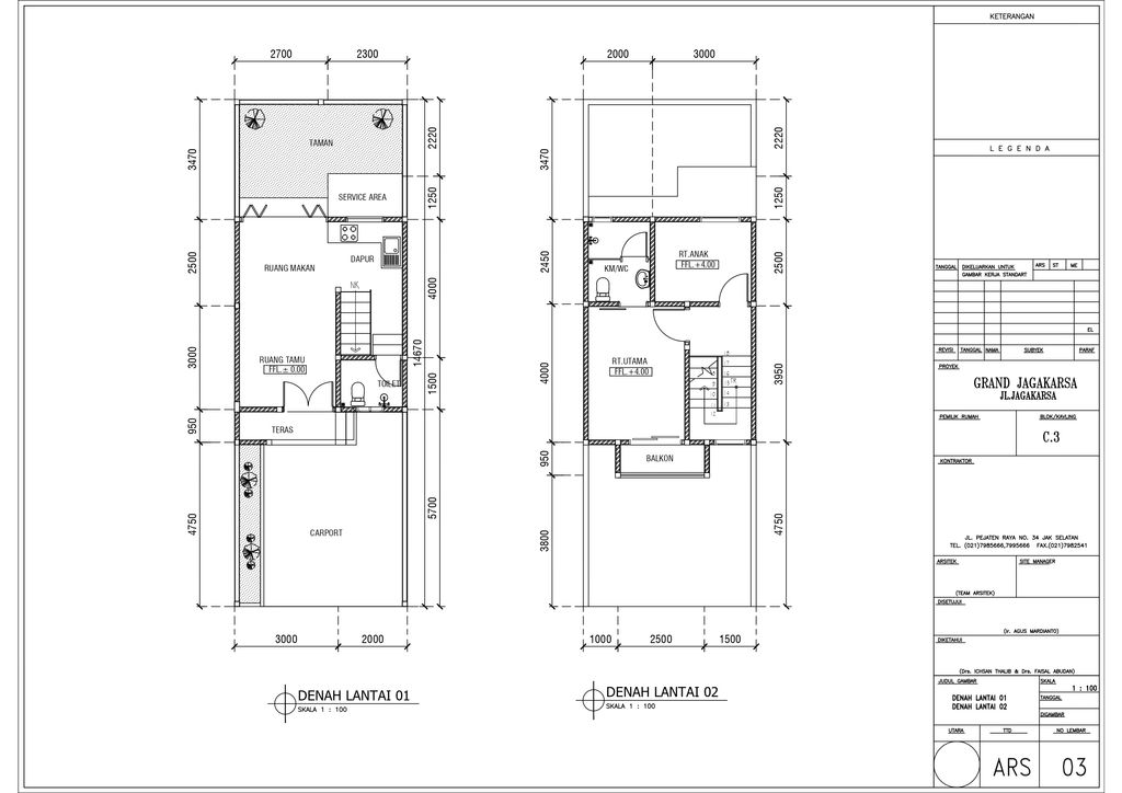
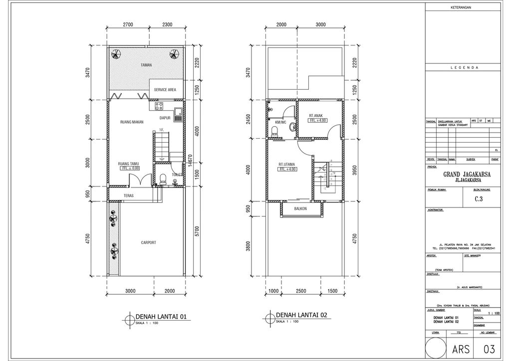
foto denah rumah tipe AMERICAN STYLE perumahan GHAZY ABDUL KARIM BAWAHAB

Harga: Rp 1.651.000.000

Luas Bangunan: 150m 2

Luas Lahan: 125m 2

Kamar Tidur: 3

Kamar Mandi: 3

Spesifikasi Teknis

a. Atap
Rangka baja ringan, atap genteng keramik glazur

b. Dinding
bata merah, plester, aci, cat

c. Lantai & Pondasi
keramik 60x60 & pondasi setempat, anti rayap

2. Tipe American Klasik 2 (komersil)
foto tampak rumah tipe American Klasik 2 perumahan GHAZY ABDUL KARIM BAWAHAB
foto denah rumah tipe American Klasik 2 perumahan GHAZY ABDUL KARIM BAWAHAB

Harga: Rp 1.612.000.000

Luas Bangunan: 135m 2

Luas Lahan: 124m 2

Kamar Tidur: 3

Kamar Mandi: 3

Spesifikasi Teknis

a. Atap
Konstruksi baja ringan, genteng keramik glazur

b. Dinding
bata merah/celcon block, plester,aci, finishing cat

c. Lantai & Pondasi
keramik 60x60 & plat pondasi setempat dan anti rayap

3. Tipe American klasik 3 (komersil)
foto tampak rumah tipe American klasik 3 perumahan GHAZY ABDUL KARIM BAWAHAB
foto denah rumah tipe American klasik 3 perumahan GHAZY ABDUL KARIM BAWAHAB

Harga: Rp 1.586.000.000

Luas Bangunan: 135m 2

Luas Lahan: 122m 2

Kamar Tidur: 3

Kamar Mandi: 3

Spesifikasi Teknis

a. Atap
Konstruksi baja ringan

b. Dinding
Bata Merah/celcon Blok, Plester, Aci,finishing Cat

c. Lantai & Pondasi
keramik 60x60 & Plat Pondasi setempat dan anti rayap


Peta Lokasi


Kantor Pemasaran

Jl. Jagakarsa , Grand Jagakarsa Ruko No. 2, Rt.014 Rw. 001 no. 2 DKI JAKARTA, KOTA ADM JAKARTA SELATAN, Jagakarsa, Jagakarsa

Telp : 085770697848

Email : fim_adm@yahoo.com

Website :