Lubuk Gadang Residence

ID Lokasi : LBB0120032022T001
SUMATERA BARAT, KAB AGAM, Tanjung Mutiara, Tiku Limo Jorong
YOGA PRIMA SENTOSA
ASOSIASI PENGEMBANG RUMAH SEDERHANA SEHAT NASIONAL (APERNAS)


Status Rumah

Subsidi : 78 Unit

Terjual Subsidi : 21 Unit

Komersil : 0 Unit

Terjual Komersil : 0 Unit

Lihat Siteplan Digital

Peta Lokasi



Kantor Pemasaran

Di Jorong Ujung Labung Timur no. 00 SUMATERA BARAT, KAB AGAM, Tanjung Mutiara, Tiku Limo Jorong

Telp : 081266034666

Email : yogaprimasentosa2023@gmail.com

Website :

Foto Lokasi


foto gerbang perumahan Lubuk Gadang Residence
Foto Gerbang/Jalan Utama
foto contoh rumah perumahan Lubuk Gadang Residence
Foto Rumah Contoh
foto posisi tengah perumahan Lubuk Gadang Residence
Foto Posisi Tengah Lokasi

Tipe Rumah


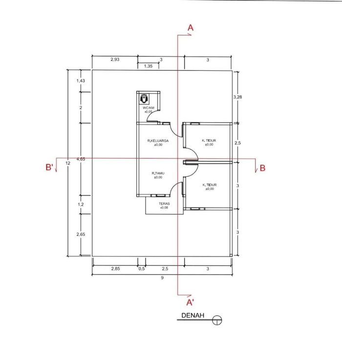
1. Tipe 36 (subsidi)
foto tampak rumah tipe 36 perumahan Lubuk Gadang Residence
foto denah rumah tipe 36 perumahan Lubuk Gadang Residence

Harga: Rp 150.500.000

Luas Bangunan: 36m 2

Luas Lahan: 108m 2

Kamar Tidur: 2

Kamar Mandi: 1

Spesifikasi Teknis

a. Atap
Baja Ringan & Seng Metal

b. Dinding
Bata di Plaster

c. Lantai & Pondasi
Full Keramik & Batu kali


Peta Lokasi


Kantor Pemasaran

Di Jorong Ujung Labung Timur no. 00 SUMATERA BARAT, KAB AGAM, Tanjung Mutiara, Tiku Limo Jorong

Telp : 081266034666

Email : yogaprimasentosa2023@gmail.com

Website :