ID Lokasi : LBB0220012025T003
SUMATERA BARAT, KAB AGAM, Lubuk Basung, Lubuk Basung
PT ELDEZAHFA MAJU JAYA
ASOSIASI PENGEMBANG RUMAH SEDERHANA SEHAT NASIONAL
(APERNAS)
Subsidi : 4 Unit
Terjual Subsidi : 5 Unit
Komersil : 0 Unit
Terjual Komersil : 0 Unit
Lihat Siteplan DigitalJorong IV Surabayo Surau Kariang no. - SUMATERA BARAT, KAB AGAM, Lubuk Basung, Lubuk Basung
Telp : 0822-8726-2134
Email : eldezahfamajujaya@gmail.com
Website : -

Harga: Rp 166.000.000
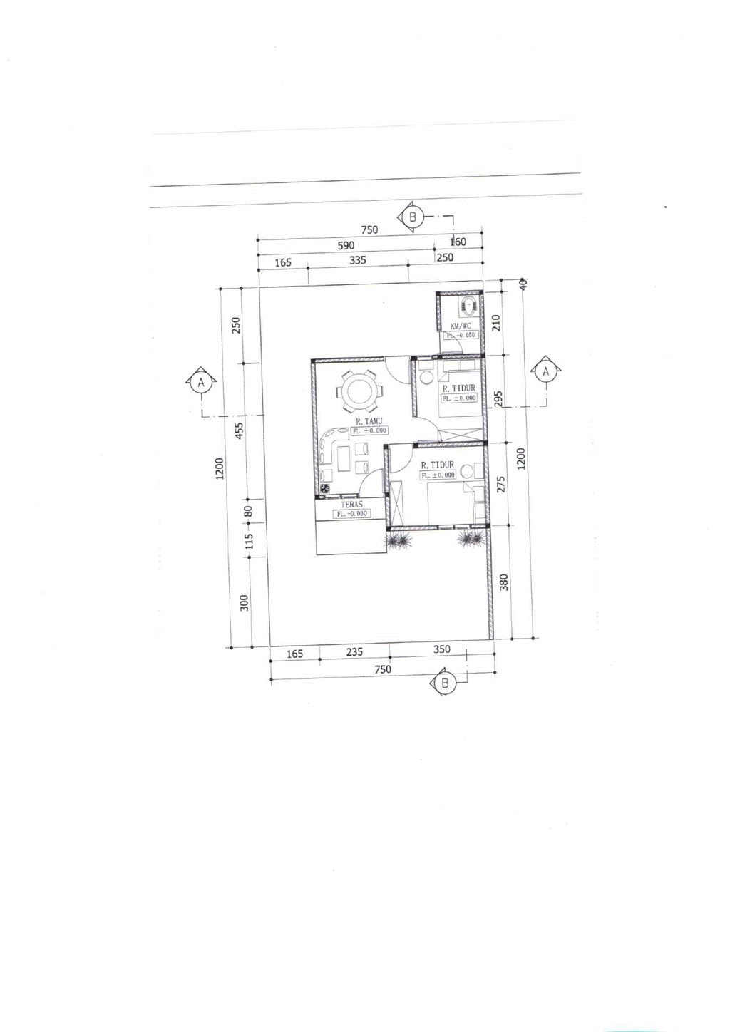
Luas Bangunan: 36m 2
Luas Lahan: 72m 2
Kamar Tidur: 2
Kamar Mandi: 1
a. Atap
Rangka Kayu, Jenis Atap Genteng Metal
b. Dinding
Bata Merah Plaster dan Aci
c. Lantai & Pondasi
Full Keramik & Batu Kali
Jorong IV Surabayo Surau Kariang no. - SUMATERA BARAT, KAB AGAM, Lubuk Basung, Lubuk Basung
Telp : 0822-8726-2134
Email : eldezahfamajujaya@gmail.com
Website : -