LAKUDO PERMAI

ID Lokasi : LBK0110072024T001
SULAWESI TENGGARA, KAB BUTON TENGAH, Lakudo, Lakudo
ALMA AWI JAYA SENTOSA
ASOSIASI PENGEMBANG RUMAH SEDERHANA SEHAT NASIONAL (APERNAS)


Status Rumah

Subsidi : 3 Unit

Terjual Subsidi : 0 Unit

Komersil : 0 Unit

Terjual Komersil : 0 Unit

Lihat Siteplan Digital

Peta Lokasi



Kantor Pemasaran

JALAN POROS WAMENGKOLI MAWASANGKA no. 02 SULAWESI TENGGARA, KAB BUTON TENGAH, Lakudo, Lakudo

Telp : 085395506687

Email : almaawijayasentosa39@gmail.com

Website :

Foto Lokasi


foto gerbang perumahan LAKUDO PERMAI
Foto Gerbang/Jalan Utama
foto contoh rumah perumahan LAKUDO PERMAI
Foto Rumah Contoh
foto posisi tengah perumahan LAKUDO PERMAI
Foto Posisi Tengah Lokasi

Tipe Rumah


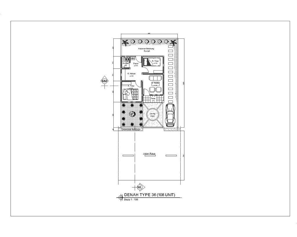
1. Tipe 36 (subsidi)
foto tampak rumah tipe 36 perumahan LAKUDO PERMAI
foto denah rumah tipe 36 perumahan LAKUDO PERMAI

Harga: Rp 173.000.000

Luas Bangunan: 36m 2

Luas Lahan: 104m 2

Kamar Tidur: 2

Kamar Mandi: 1

Spesifikasi Teknis

a. Atap
spandek

b. Dinding
BATAKO, BATA MERAH

c. Lantai & Pondasi
KERAMIK & BATU GUNUNG


Peta Lokasi


Kantor Pemasaran

JALAN POROS WAMENGKOLI MAWASANGKA no. 02 SULAWESI TENGGARA, KAB BUTON TENGAH, Lakudo, Lakudo

Telp : 085395506687

Email : almaawijayasentosa39@gmail.com

Website :