ID Lokasi : LBP0520132023T003
SUMATERA UTARA, KAB DELI SERDANG, Pancur Batu, Namo Bintang
PT TAMSAKA CIPTA PROPERTI
REAL ESTATE INDONESIA
(REI)
Subsidi : 2 Unit
Terjual Subsidi : 6 Unit
Komersil : 0 Unit
Terjual Komersil : 0 Unit
Lihat Siteplan DigitalJalan Jamin Ginting Simpang Bekala Lingkungan II no. 01 SUMATERA UTARA, KOTA MEDAN, Medan Tuntungan, Sidomulyo
Telp : 061-80046960
Email : tamsakacproperti@gmail.com
Website : https://tamsakaciptaproperti.com/





Harga: Rp 166.000.000
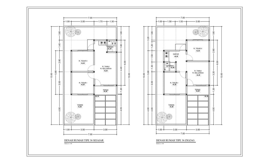
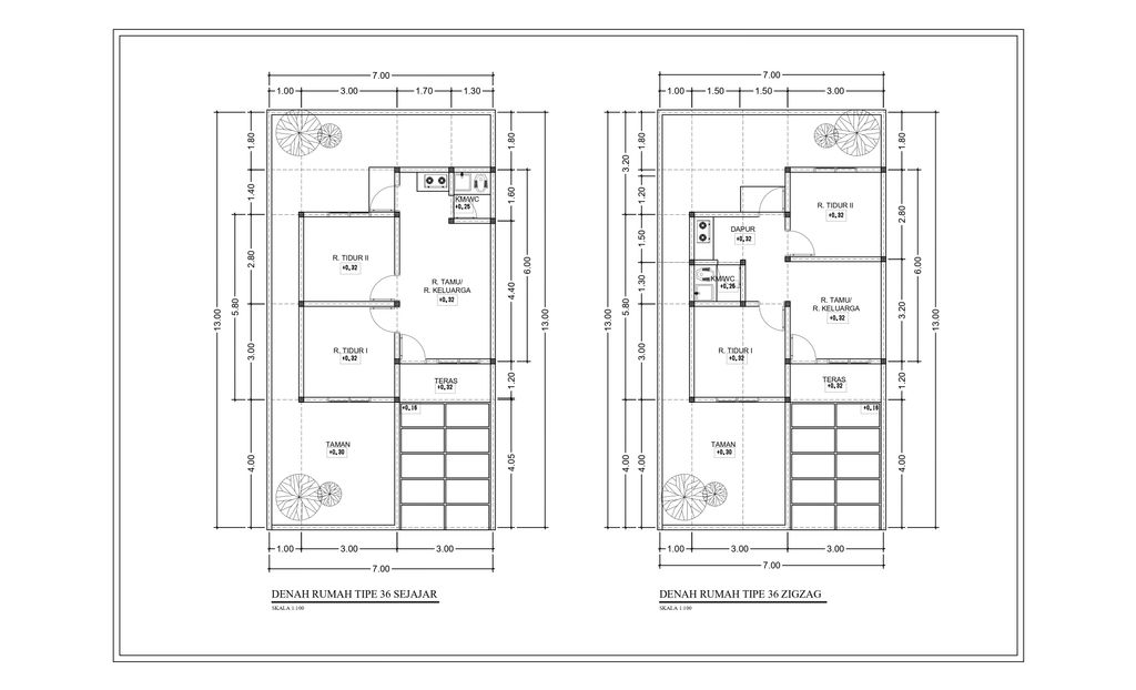
Luas Bangunan: 36m 2
Luas Lahan: 91m 2
Kamar Tidur: 2
Kamar Mandi: 1
a. Atap
Rangka Baja RIngan, Atap Spandek
b. Dinding
Bata, Plaster Semen Kasar, Plaster semen Halus
c. Lantai & Pondasi
Keramik 40x40 & Cor Beton Rangka Bertulang


Harga: Rp 166.000.000
Luas Bangunan: 36m 2
Luas Lahan: 148m 2
Kamar Tidur: 2
Kamar Mandi: 1
a. Atap
Baja Ringan, Atap Spandek
b. Dinding
Batu Bata, Plester, Seal dan Cat Luar-Dalam
c. Lantai & Pondasi
Keramik 40x40 & Cor Batu Kali


Harga: Rp 166.000.000
Luas Bangunan: 36m 2
Luas Lahan: 149m 2
Kamar Tidur: 2
Kamar Mandi: 1
a. Atap
Spandek Baja Ringan
b. Dinding
Batu Bata Plester
c. Lantai & Pondasi
Keramik 40x40, Keramik Plin & Cor Batu Kali


Harga: Rp 166.000.000
Luas Bangunan: 36m 2
Luas Lahan: 144m 2
Kamar Tidur: 2
Kamar Mandi: 1
a. Atap
Rangka Baja Atap Spandek
b. Dinding
Batu Bata, Plester
c. Lantai & Pondasi
Keramik 40 x 40 & Cor Batu Kali
Jalan Jamin Ginting Simpang Bekala Lingkungan II no. 01 SUMATERA UTARA, KOTA MEDAN, Medan Tuntungan, Sidomulyo
Telp : 061-80046960
Email : tamsakacproperti@gmail.com
Website : https://tamsakaciptaproperti.com/