ID Lokasi : LBP2320122021T004
SUMATERA UTARA, KAB DELI SERDANG, Sunggal, Sukamaju
PT MAHOGANY ANNARIS NUSANTARA
REAL ESTATE INDONESIA
(REI)
Subsidi : 7 Unit
Terjual Subsidi : 137 Unit
Komersil : 0 Unit
Terjual Komersil : 0 Unit
Lihat Siteplan DigitalJALAN SETIABUDI no. 108 SUMATERA UTARA, KOTA MEDAN, Medan Selayang, Tanjungsari
Telp : 061-4240-2134
Email : mahoganyannarisnusantara@gmail.com
Website : mahogany.co.id





Harga: Rp 162.000.000
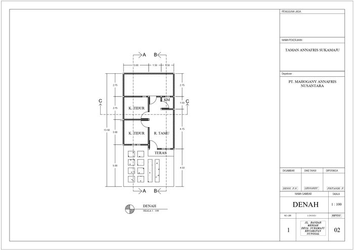
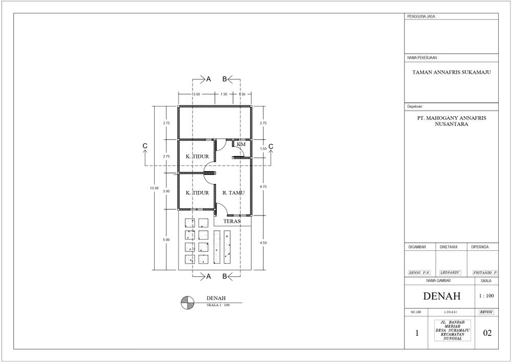
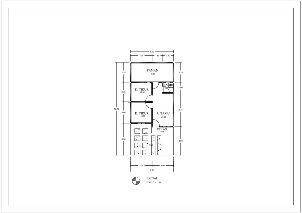
Luas Bangunan: 36m 2
Luas Lahan: 78m 2
Kamar Tidur: 2
Kamar Mandi: 1
a. Atap
Menggunakan Atap Genteng Metal 2. Menggunakan Kuda-Kuda Baja Ringan C 70 dengan Ketebalan 0,6
b. Dinding
Pasangan Bata + Plester + Aci 2. Menggunakan Struktur Beton Bertulang
c. Lantai & Pondasi
Menggunakan Keramik Lantai Ukuran 40 X 40 & Menggunakan Pondasi Batu Kali


Harga: Rp 150.500.000
Luas Bangunan: 36m 2
Luas Lahan: 78m 2
Kamar Tidur: 2
Kamar Mandi: 1
a. Atap
Menggunakan Atap Genteng Metal 2. Menggunakan Kuda-Kuda Baja Ringan C 70 dengan Ketebalan 0,6
b. Dinding
Pasangan Bata + Plester + Aci 2. Menggunakan Struktur Beton Bertulang
c. Lantai & Pondasi
Menggunakan Keramik Lantai Ukuran 40 X 40 & Menggunakan Pondasi Batu Kali


Harga: Rp 166.000.000
Luas Bangunan: 36m 2
Luas Lahan: 78m 2
Kamar Tidur: 2
Kamar Mandi: 1
a. Atap
Menggunakan Atap Genteng Metal 2. Menggunakan Kuda-Kuda Baja Ringan C 70 dengan Ketebalan 0,6
b. Dinding
Pasangan Bata + Plester + Aci 2. Menggunakan Struktur Beton Bertulang
c. Lantai & Pondasi
Menggunakan Keramik Lantai Ukuran 40 X 40 & Menggunakan Pondasi Batu Kali
JALAN SETIABUDI no. 108 SUMATERA UTARA, KOTA MEDAN, Medan Selayang, Tanjungsari
Telp : 061-4240-2134
Email : mahoganyannarisnusantara@gmail.com
Website : mahogany.co.id