SURYA HARMONY TAHAP 2

ID Lokasi : LBP2720072025T002
SUMATERA UTARA, KAB DELI SERDANG, Batang Kuis, Bintang Meriah
MAKMUR BERSAMA SEDAYA
PERKUMPULAN ASOSIASI PENGEMBANG PERUMAHAN DAN PERMUKIMAN SELURUH INDONESIA (APERSI)


Status Rumah

Subsidi : 40 Unit

Terjual Subsidi : 0 Unit

Komersil : 0 Unit

Terjual Komersil : 0 Unit

Lihat Siteplan Digital

Peta Lokasi



Kantor Pemasaran

JL PANCASILA DUSUN II no. A6 SUMATERA UTARA, KAB DELI SERDANG, Batang Kuis, Paya Gambar

Telp : 06166478873

Email : makmurbesamasedaya@gmail.com

Website : sedayagroup.id

Foto Lokasi


foto gerbang perumahan SURYA HARMONY TAHAP 2
Foto Gerbang/Jalan Utama
foto contoh rumah perumahan SURYA HARMONY TAHAP 2
Foto Rumah Contoh
foto posisi tengah perumahan SURYA HARMONY TAHAP 2
Foto Posisi Tengah Lokasi

Tipe Rumah


1. Tipe 36/72 (subsidi)
foto tampak rumah tipe 36/72 perumahan SURYA HARMONY TAHAP 2
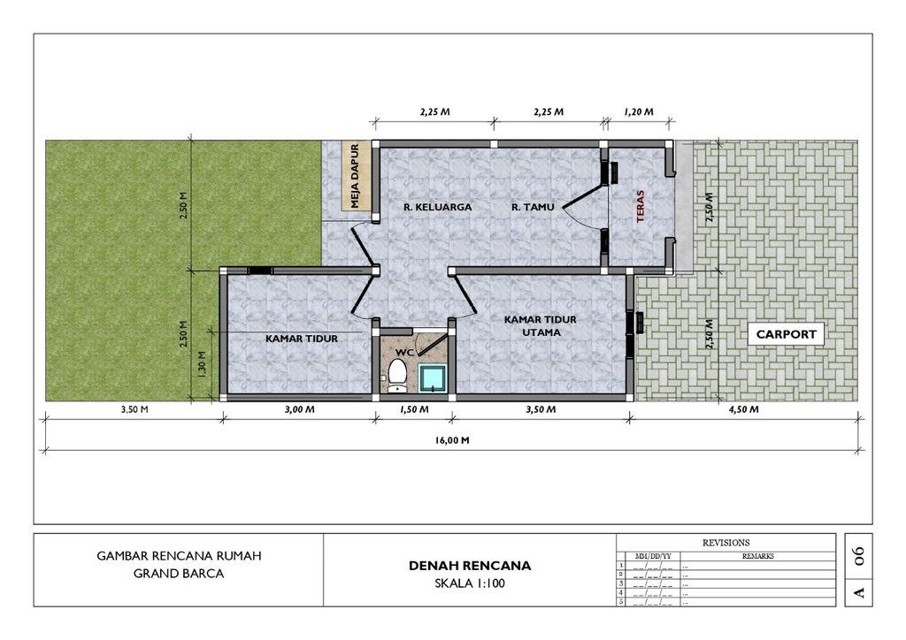
foto denah rumah tipe 36/72 perumahan SURYA HARMONY TAHAP 2

Harga: Rp 166.000.000

Luas Bangunan: 36m 2

Luas Lahan: 72m 2

Kamar Tidur: 2

Kamar Mandi: 1

Spesifikasi Teknis

a. Atap
SPANDEK

b. Dinding
BATU BATA + PLESTER + CAT

c. Lantai & Pondasi
KERAMIK 40X40 & BATU KALI

2. Tipe 36/72 (komersil)
foto tampak rumah tipe 36/72 perumahan SURYA HARMONY TAHAP 2
foto denah rumah tipe 36/72 perumahan SURYA HARMONY TAHAP 2

Harga: Rp 166.000.000

Luas Bangunan: 36m 2

Luas Lahan: 72m 2

Kamar Tidur: 2

Kamar Mandi: 1

Spesifikasi Teknis

a. Atap
SPANDEK

b. Dinding
BATU BATA + PLESTER+CAT

c. Lantai & Pondasi
KERAMIK 40X40 & BATU KALI


Peta Lokasi


Kantor Pemasaran

JL PANCASILA DUSUN II no. A6 SUMATERA UTARA, KAB DELI SERDANG, Batang Kuis, Paya Gambar

Telp : 06166478873

Email : makmurbesamasedaya@gmail.com

Website : sedayagroup.id