ID Lokasi : LBT1820082020T001
GORONTALO, KAB GORONTALO, Tilango, Tinelo
PT SINARINDO MULTI LESTARI
ASOSIASI PENGEMBANG PERUMAHAN INDONESIA
(APPERINDO)
Subsidi : 0 Unit
Terjual Subsidi : 46 Unit
Komersil : 7 Unit
Terjual Komersil : 5 Unit
Lihat Siteplan Digital




Harga: Rp 156.500.000
Luas Bangunan: 36m 2
Luas Lahan: 100m 2
Kamar Tidur: 2
Kamar Mandi: 1
a. Atap
Rangka Atap Baja Ringan
Penutup Atap Genteng Metal
b. Dinding
Dinding bata merah
Di plester aci dan cat
c. Lantai & Pondasi
Lantai keramik 50x50 cm ruangan
Lantai Toilet 25x25 cm dan Dinding 25x40 cm & Pondasi batu pecah
Sloof Beton Bertulang
Kolom Beton Bertulang


Harga: Rp 250.000.000
Luas Bangunan: 45m 2
Luas Lahan: 100m 2
Kamar Tidur: 2
Kamar Mandi: 1
a. Atap
Rangka atap baja ringan penutup atap genteng metal
b. Dinding
Bata merah plester aci dan cat
c. Lantai & Pondasi
Tapak Beton Bertulang & Pondasi Batu pecah


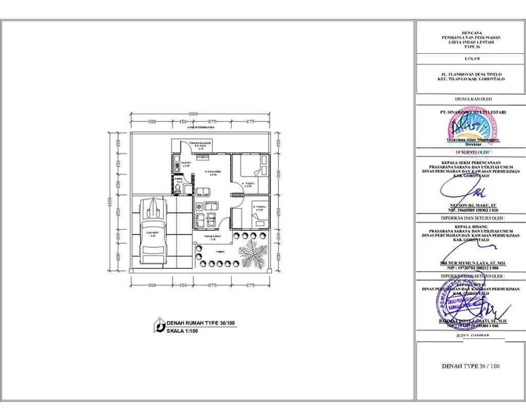
Harga: Rp 173.000.000
Luas Bangunan: 36m 2
Luas Lahan: 100m 2
Kamar Tidur: 2
Kamar Mandi: 1
a. Atap
Rangka Atap Baja Ringan Penutup Atap Genteng Metal
b. Dinding
Dinding bata merah di plester aci dan cat
c. Lantai & Pondasi
Lantai keramik 50x50 cm ruangan lantai toilet 25x25 cm dan dinding 25x40 cm & Pondasi batu pecah sloof beton bertulang kolom beton bertulang