ID Lokasi : LGS0220062025T004
ACEH, KOTA LANGSA, Langsa Barat, PB Teungoh
PT ALMEERA INDONESIA LAND
Himpunan Pengembang Permukiman dan Perumahan Rakyat
(HIMPERRA)
Subsidi : 5 Unit
Terjual Subsidi : 2 Unit
Komersil : 2 Unit
Terjual Komersil : 0 Unit
Lihat Siteplan Digital



Harga: Rp 164.000.000
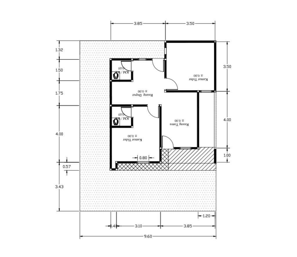
Luas Bangunan: 36m 2
Luas Lahan: 109m 2
Kamar Tidur: 2
Kamar Mandi: 1
a. Atap
Genteng Metal
b. Dinding
Bata Plasteran
c. Lantai & Pondasi
Keramik & Batu Kali / cor tapak

Harga: Rp 260.000.000
Luas Bangunan: 50m 2
Luas Lahan: 110m 2
Kamar Tidur: 2
Kamar Mandi: 1
a. Atap
Genteng Metal
b. Dinding
Batu Bata Plaster
c. Lantai & Pondasi
Granit & Cor Bertulang