GRIYA IBNU SINA

ID Lokasi : LGS0520072023T001
ACEH, KOTA LANGSA, Langsa Baro, Paya Bujok Tunong
IBNUSINA PRIMA PERKASA
Himpunan Pengembang Permukiman dan Perumahan Rakyat (HIMPERRA)


Status Rumah

Subsidi : 73 Unit

Terjual Subsidi : 0 Unit

Komersil : 0 Unit

Terjual Komersil : 0 Unit

Lihat Siteplan Digital

Peta Lokasi



Kantor Pemasaran

Jln.Lilawangsa Gp. Paya Bujok Tunong Kec. Langsa Baro no. 0 ACEH, KOTA LANGSA, Langsa Baro, Paya Bujok Tunong

Telp : 085260681228

Email : pt.ibnusinaprimaperkasa@gmail.com

Website :

Foto Lokasi


foto gerbang perumahan GRIYA IBNU SINA
Foto Gerbang/Jalan Utama
foto contoh rumah perumahan GRIYA IBNU SINA
Foto Rumah Contoh
foto posisi tengah perumahan GRIYA IBNU SINA
Foto Posisi Tengah Lokasi

Tipe Rumah


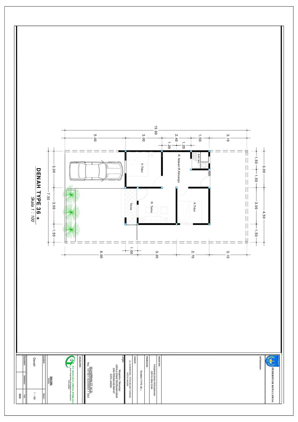
1. Tipe Griya Ibnu Sina (subsidi)
foto tampak rumah tipe Griya Ibnu Sina perumahan GRIYA IBNU SINA
foto denah rumah tipe Griya Ibnu Sina perumahan GRIYA IBNU SINA

Harga: Rp 162.000.000

Luas Bangunan: 36m 2

Luas Lahan: 112.5m 2

Kamar Tidur: 2

Kamar Mandi: 1

Spesifikasi Teknis

a. Atap
Rangka Baja

b. Dinding
Beton

c. Lantai & Pondasi
Keramik & Batu Gunung


Peta Lokasi


Kantor Pemasaran

Jln.Lilawangsa Gp. Paya Bujok Tunong Kec. Langsa Baro no. 0 ACEH, KOTA LANGSA, Langsa Baro, Paya Bujok Tunong

Telp : 085260681228

Email : pt.ibnusinaprimaperkasa@gmail.com

Website :