ID Lokasi : LLG0810012025T003
SUMATERA SELATAN, KOTA LUBUK LINGGAU, Lubuk Linggau Utara II, Batu Urip
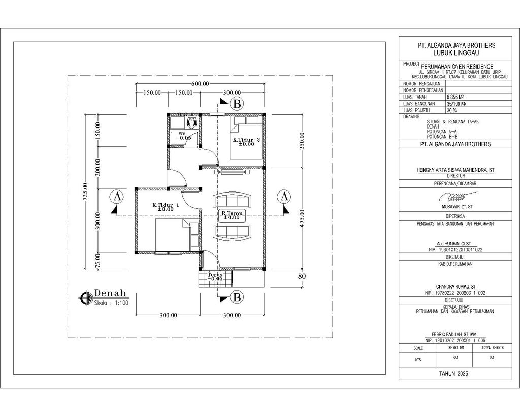
PT ALGANDA JAYA BROTHERS
PENGEMBANG INDONESIA
(PI)
Subsidi : 45 Unit
Terjual Subsidi : 4 Unit
Komersil : 0 Unit
Terjual Komersil : 0 Unit
Lihat Siteplan Digital




Harga: Rp 166.000.000
Luas Bangunan: 36m 2
Luas Lahan: 100m 2
Kamar Tidur: 2
Kamar Mandi: 1
a. Atap
Atap Multiroof
b. Dinding
Dinding batu bata
c. Lantai & Pondasi
Lantai Keramik & Pondasi Batu Gunung