ID Lokasi : LMG2210172022T001
JAWA TIMUR, KAB LAMONGAN, Lamongan, Sidokumpul
PT SINAR SMART PERDANA
ASOSIASI PENGEMBANG RUMAH SEDERHANA SEHAT NASIONAL
(APERNAS)
Subsidi : 48 Unit
Terjual Subsidi : 26 Unit
Komersil : 0 Unit
Terjual Komersil : 2 Unit
Lihat Siteplan Digital




Harga: Rp 162.000.000
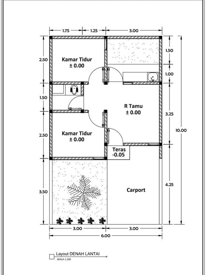
Luas Bangunan: 30m 2
Luas Lahan: 66m 2
Kamar Tidur: 2
Kamar Mandi: 1
a. Atap
rangka galvalum
b. Dinding
dinding bata ringan
c. Lantai & Pondasi
keramik & beton betulang


Harga: Rp 162.000.000
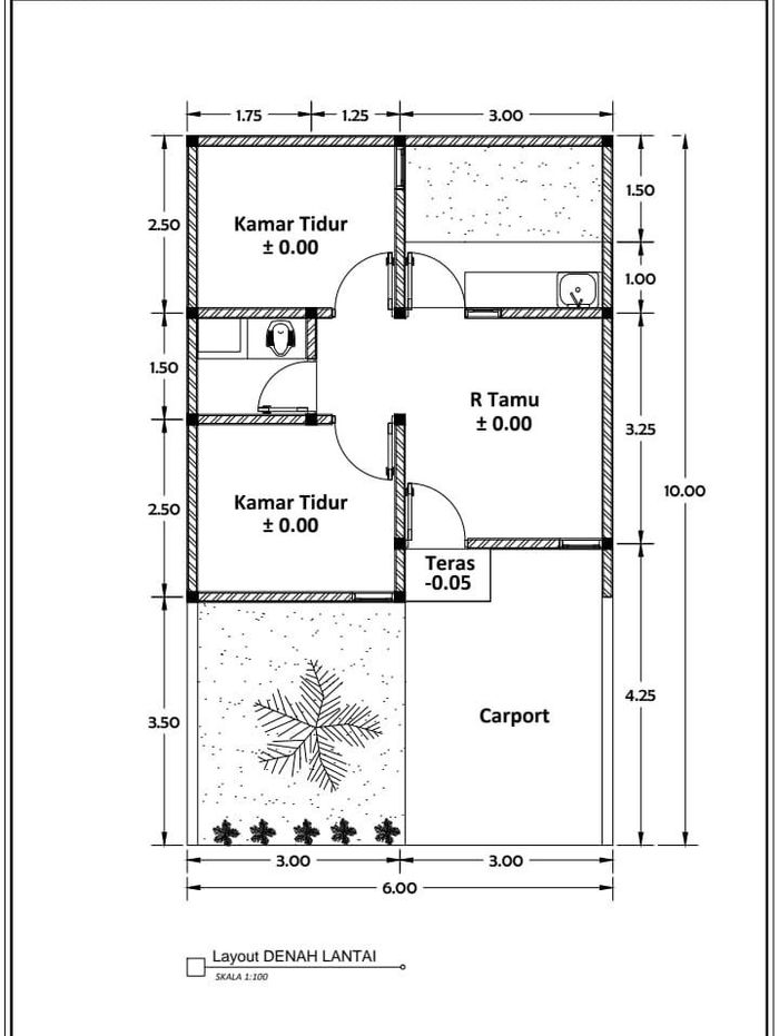
Luas Bangunan: 30m 2
Luas Lahan: 60m 2
Kamar Tidur: 2
Kamar Mandi: 1
a. Atap
atap galvalum
b. Dinding
bata ringan
c. Lantai & Pondasi
keramik & beton bertulang pondasi batu kumbung


Harga: Rp 150.500.000
Luas Bangunan: 30m 2
Luas Lahan: 66m 2
Kamar Tidur: 2
Kamar Mandi: 1
a. Atap
rangka atap galvalum dan genteng dari beton
b. Dinding
bata ringan
c. Lantai & Pondasi
keramik 40 x 40 & strouss


Harga: Rp 150.500.000
Luas Bangunan: 30m 2
Luas Lahan: 60m 2
Kamar Tidur: 2
Kamar Mandi: 1
a. Atap
rangka galvalum dengan genteng beton
b. Dinding
bata ringan
c. Lantai & Pondasi
40x40 & strouls