ID Lokasi : LMJ1010042025T001
JAWA TIMUR, KAB LUMAJANG, Lumajang, Ditotrunan
PT MAKMUR SEJAHTERA PROPERTI
PERKUMPULAN ASOSIASI PENGEMBANG PERUMAHAN DAN PERMUKIMAN SELURUH INDONESIA
(APERSI)
Subsidi : 31 Unit
Terjual Subsidi : 3 Unit
Komersil : 17 Unit
Terjual Komersil : 0 Unit
Lihat Siteplan Digital




Harga: Rp 166.000.000
Luas Bangunan: 31m 2
Luas Lahan: 60m 2
Kamar Tidur: 2
Kamar Mandi: 1
a. Atap
Atap menggunakan Rangka Baja Ringan Dengan Penutup Atap Spandek
b. Dinding
Dinding menggunakan Bata Ringan, Diplester, Aci dan Cat
c. Lantai & Pondasi
Lantai menggunakan Keramik 30x30 cm & Pondasi menggunakan Batu Kali


Harga: Rp 250.000.000
Luas Bangunan: 34m 2
Luas Lahan: 60m 2
Kamar Tidur: 2
Kamar Mandi: 1
a. Atap
Atap menggunakan Rangka Baja Ringan Dengan Penutup Atap Spandek
b. Dinding
Dinding menggunakan Bata Merah, Diplester, Aci dan Cat
c. Lantai & Pondasi
Lantai menggunakan Keramik 30x30 cm & Pondasi menggunakan Batu Kali


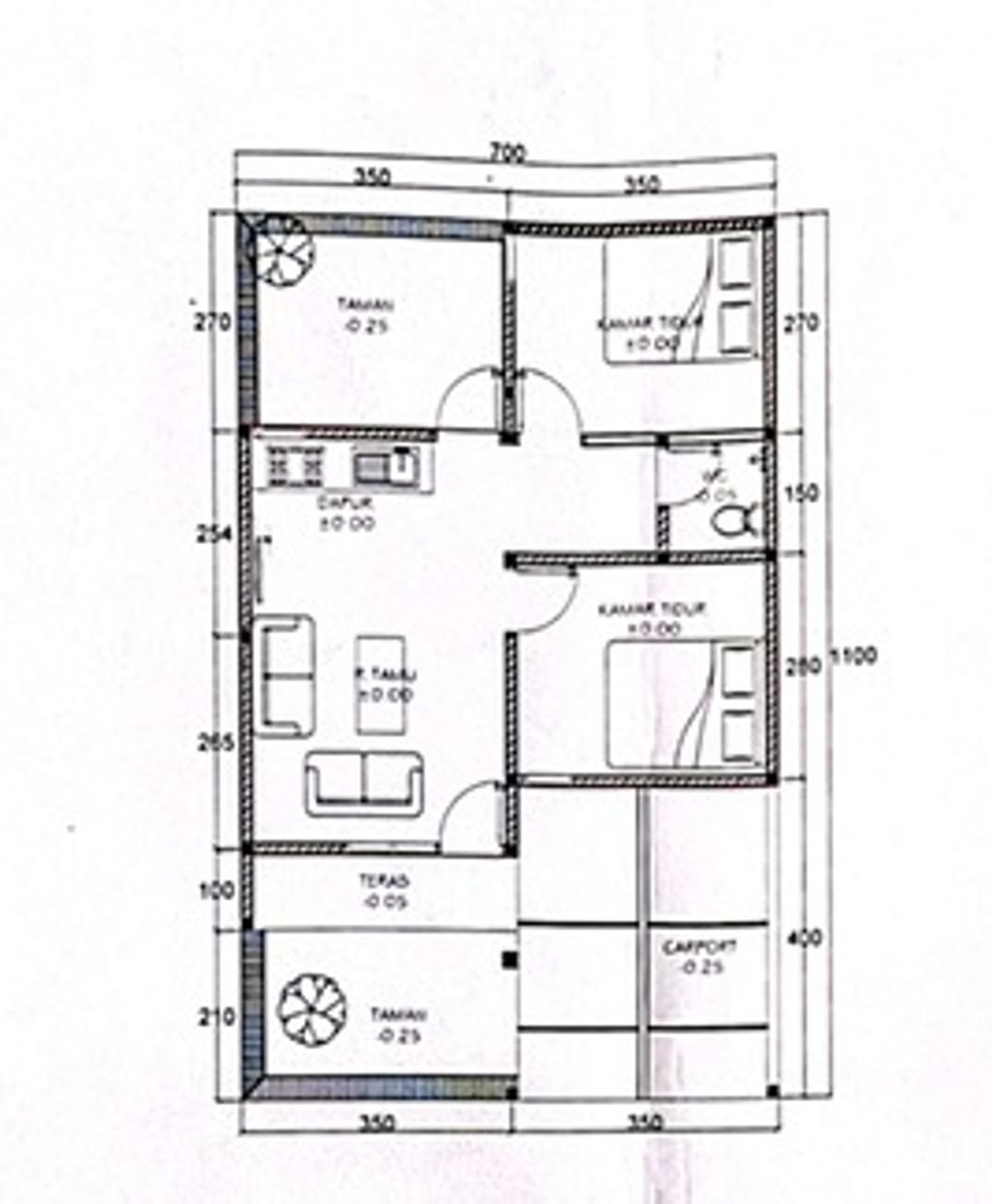
Harga: Rp 350.000.000
Luas Bangunan: 43m 2
Luas Lahan: 60m 2
Kamar Tidur: 2
Kamar Mandi: 1
a. Atap
Atap menggunakan Rangka Baja Ringan Dengan Penutup Atap Genteng
b. Dinding
Dinding menggunakan Bata Merah, Diplester, Aci dan Cat
c. Lantai & Pondasi
Lantai menggunakan Keramik 30x30 cm & Pondasi menggunakan Batu Kali