ID Lokasi : LMJ1010102025T001
JAWA TIMUR, KAB LUMAJANG, Lumajang, Rogotrunan
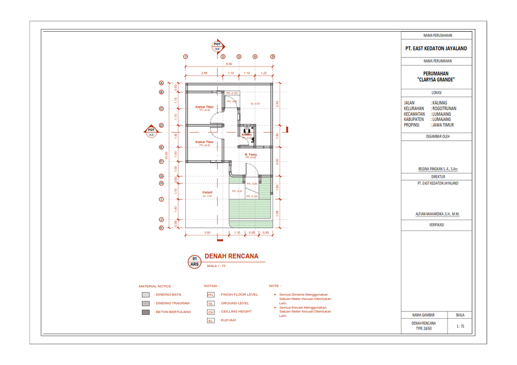
PT EAST KEDATON JAYALAND
REAL ESTATE INDONESIA
(REI)
Subsidi : 91 Unit
Terjual Subsidi : 33 Unit
Komersil : 0 Unit
Terjual Komersil : 0 Unit
Lihat Siteplan DigitalGraha Clarysa Jl. Kapuas Jogoyudan Lumajang no. 2 JAWA TIMUR, KAB LUMAJANG, Lumajang, Jogoyudan
Telp : 082120020040
Email : pteastkedaton@gmail.com
Website : https://clarysaproperty.com/





Harga: Rp 166.000.000
Luas Bangunan: 23m 2
Luas Lahan: 64m 2
Kamar Tidur: 1
Kamar Mandi: 1
a. Atap
Rangka atap : baja ringan
Penutup atap : spandek
b. Dinding
Dinding bata ringan
Plesteran, Acian, dan Cat
c. Lantai & Pondasi
Lantai keramik 40 x 40 (Ruang tamu, kamar, teras)
Lantai keramik 30 x 30 (kamar mandi) & Pondasi Batu Kali


Harga: Rp 166.000.000
Luas Bangunan: 24m 2
Luas Lahan: 60m 2
Kamar Tidur: 2
Kamar Mandi: 1
a. Atap
Rangka atap : Baja ringan
Penutup atap : Spandek
b. Dinding
Dinding bata ringan
Plesteran, acian, dan cat
c. Lantai & Pondasi
Lantai 40 x 40 (ruang tamu, kamar, teras)
Lantai 30 x 30 (kamar mandi) & Pondasi Batu Kali
Graha Clarysa Jl. Kapuas Jogoyudan Lumajang no. 2 JAWA TIMUR, KAB LUMAJANG, Lumajang, Jogoyudan
Telp : 082120020040
Email : pteastkedaton@gmail.com
Website : https://clarysaproperty.com/