ID Lokasi : LMJ1520072022T001
JAWA TIMUR, KAB LUMAJANG, Sukodono, Sumberejo
PANCORANMAS INVESTAMA
PERKUMPULAN ASOSIASI PENGEMBANG PERUMAHAN DAN PERMUKIMAN SELURUH INDONESIA
(APERSI)
Subsidi : 9 Unit
Terjual Subsidi : 15 Unit
Komersil : 0 Unit
Terjual Komersil : 0 Unit
Lihat Siteplan Digital




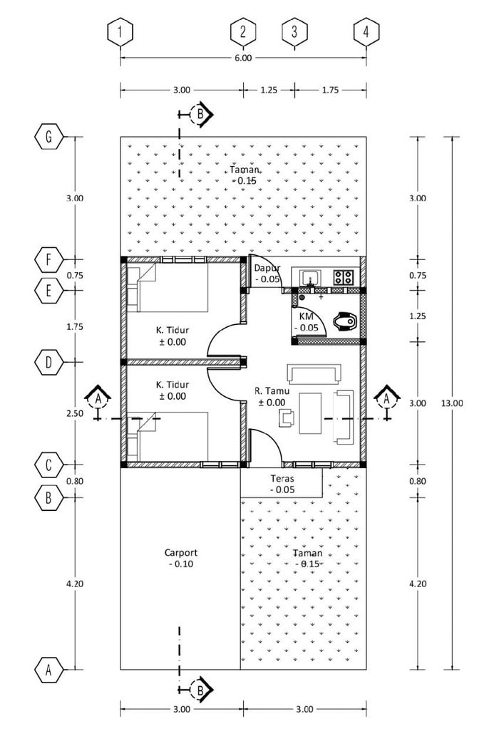
Harga: Rp 150.500.000
Luas Bangunan: 30m 2
Luas Lahan: 78m 2
Kamar Tidur: 2
Kamar Mandi: 1
a. Atap
Genteng
b. Dinding
Bata Ringan, di Plester dan di Aci, Finishing Cat
c. Lantai & Pondasi
Keramik 40 X 40 Putih Polos by Mulia & Batu Kali