ID Lokasi : LMJ1520092020T001
JAWA TIMUR, KAB LUMAJANG, Sukodono, Selokgondang
PT ALFI GRAHA WIRATAMA
PERKUMPULAN ASOSIASI PENGEMBANG PERUMAHAN DAN PERMUKIMAN SELURUH INDONESIA
(APERSI)
Subsidi : 6 Unit
Terjual Subsidi : 11 Unit
Komersil : 0 Unit
Terjual Komersil : 11 Unit
Lihat Siteplan Digital




Harga: Rp 150.000.000
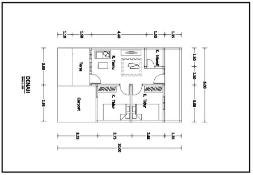
Luas Bangunan: 36m 2
Luas Lahan: 60m 2
Kamar Tidur: 2
Kamar Mandi: 1
a. Atap
Rangka Baja Ringan dan Genteng Cor
b. Dinding
Bata Merah di plester dan dicat
c. Lantai & Pondasi
Tapak Beton Bertulang dan Keramik & Batu Kali di Semen halus