GRIYA MB CITY SYARIAH

ID Lokasi : LMP0120172023T001
SUMATERA UTARA, KAB BATU BARA, Medang Deras, Medang Baru
ABDUH LABUHAN LESTARI
ASOSIASI PENGEMBANG PERUMAHAN RAKYAT INDONESIA (ASPERI)


Status Rumah

Subsidi : 35 Unit

Terjual Subsidi : 14 Unit

Komersil : 0 Unit

Terjual Komersil : 0 Unit

Lihat Siteplan Digital

Peta Lokasi



Kantor Pemasaran

Dusun Blok 10, Desa Pematang Cengkering no. 04 SUMATERA UTARA, KAB BATU BARA, Medang Deras, Pematang Cengkering

Telp : 083155677523

Email : ptabduhlabuhanlestari@gmail.com

Website : https://asperisumutklikrumah.com

Foto Lokasi


foto gerbang perumahan GRIYA MB CITY SYARIAH
Foto Gerbang/Jalan Utama
foto contoh rumah perumahan GRIYA MB CITY SYARIAH
Foto Rumah Contoh
foto posisi tengah perumahan GRIYA MB CITY SYARIAH
Foto Posisi Tengah Lokasi

Tipe Rumah


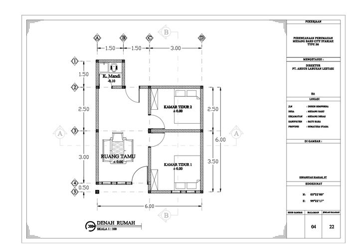
1. Tipe 36 (subsidi)
foto tampak rumah tipe 36 perumahan GRIYA MB CITY SYARIAH
foto denah rumah tipe 36 perumahan GRIYA MB CITY SYARIAH

Harga: Rp 150.500.000

Luas Bangunan: 36m 2

Luas Lahan: 101m 2

Kamar Tidur: 2

Kamar Mandi: 1

Spesifikasi Teknis

a. Atap
ATAP SPENDEK RANGKA KAYU

b. Dinding
BATAKO,SEMEN HALUS DAN CAT

c. Lantai & Pondasi
FULL KRAMIK & SEMEN DAN BATU PADAS


Peta Lokasi


Kantor Pemasaran

Dusun Blok 10, Desa Pematang Cengkering no. 04 SUMATERA UTARA, KAB BATU BARA, Medang Deras, Pematang Cengkering

Telp : 083155677523

Email : ptabduhlabuhanlestari@gmail.com

Website : https://asperisumutklikrumah.com