TE AMO CITY III

ID Lokasi : LMP0320072025T001
SUMATERA UTARA, KAB BATU BARA, Air Putih, Tanah Merah
BINTANG CAHAYA MAJU
PERKUMPULAN ASOSIASI PENGEMBANG PERUMAHAN DAN PERMUKIMAN SELURUH INDONESIA (APERSI)


Status Rumah

Subsidi : 20 Unit

Terjual Subsidi : 2 Unit

Komersil : 0 Unit

Terjual Komersil : 0 Unit

Lihat Siteplan Digital

Peta Lokasi



Kantor Pemasaran

Jl. Datuk Umar Palangki, nomor 1, SUMATERA UTARA, KAB BATU BARA, Air Putih, Tanah Merah no. 1 SUMATERA UTARA, KAB BATU BARA, Air Putih, Tanah Merah

Telp : 085266147300

Email : ptbintangcahayamaju@gmail.com

Website :

Foto Lokasi


foto gerbang perumahan TE AMO CITY III
Foto Gerbang/Jalan Utama
foto contoh rumah perumahan TE AMO CITY III
Foto Rumah Contoh
foto posisi tengah perumahan TE AMO CITY III
Foto Posisi Tengah Lokasi

Tipe Rumah


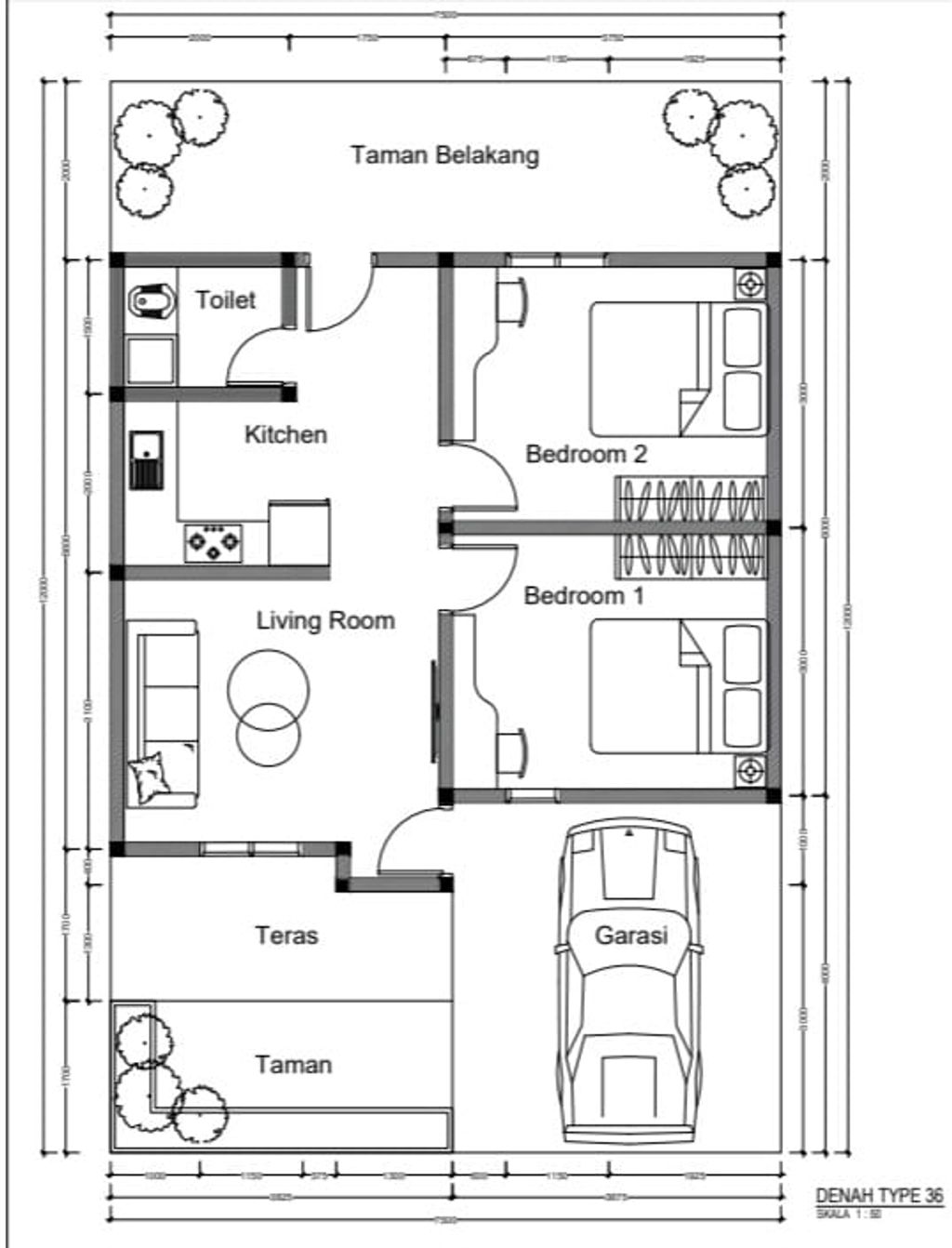
1. Tipe 36 (subsidi)
foto tampak rumah tipe 36 perumahan TE AMO CITY III
foto denah rumah tipe 36 perumahan TE AMO CITY III

Harga: Rp 166.000.000

Luas Bangunan: 36m 2

Luas Lahan: 90m 2

Kamar Tidur: 2

Kamar Mandi: 1

Spesifikasi Teknis

a. Atap
Kerangka baja

b. Dinding
Batubata beton

c. Lantai & Pondasi
Keramik & Batu padas


Peta Lokasi


Kantor Pemasaran

Jl. Datuk Umar Palangki, nomor 1, SUMATERA UTARA, KAB BATU BARA, Air Putih, Tanah Merah no. 1 SUMATERA UTARA, KAB BATU BARA, Air Putih, Tanah Merah

Telp : 085266147300

Email : ptbintangcahayamaju@gmail.com

Website :