Qanita residence 2

ID Lokasi : LMP0510012021T001
SUMATERA UTARA, KAB BATU BARA, Talawi, Labuhan Ruku
QANITA SAHLA BAROKAH
PERKUMPULAN ASOSIASI PENGEMBANG PERUMAHAN DAN PERMUKIMAN SELURUH INDONESIA (APERSI)


Status Rumah

Subsidi : 123 Unit

Terjual Subsidi : 15 Unit

Komersil : 0 Unit

Terjual Komersil : 0 Unit

Lihat Siteplan Digital

Peta Lokasi



Kantor Pemasaran

Jalan Imam Bonjol no. 76 SUMATERA UTARA, KAB BATU BARA, Talawi, Labuhan Ruku

Telp : 08116597772

Email : pt.qanitasahlabarokah@gmail.com

Website :

Foto Lokasi


foto gerbang perumahan Qanita residence 2
Foto Gerbang/Jalan Utama
foto contoh rumah perumahan Qanita residence 2
Foto Rumah Contoh
foto posisi tengah perumahan Qanita residence 2
Foto Posisi Tengah Lokasi

Tipe Rumah


1. Tipe 36/91 (subsidi)
foto tampak rumah tipe 36/91 perumahan Qanita residence 2
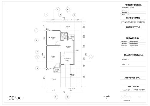
foto denah rumah tipe 36/91 perumahan Qanita residence 2

Harga: Rp 130.000.000

Luas Bangunan: 36m 2

Luas Lahan: 91m 2

Kamar Tidur: 2

Kamar Mandi: 1

Spesifikasi Teknis

a. Atap
RANGKA BAJA

b. Dinding
BATU BATA DI PLASTER DAN DI CAT

c. Lantai & Pondasi
KERAMIK & SEMEN HALUS


Peta Lokasi


Kantor Pemasaran

Jalan Imam Bonjol no. 76 SUMATERA UTARA, KAB BATU BARA, Talawi, Labuhan Ruku

Telp : 08116597772

Email : pt.qanitasahlabarokah@gmail.com

Website :