ID Lokasi : MAM1210012024T001
SULAWESI BARAT, KAB MAMUJU, Simboro dan Kepulauan, Simboro
PT ANSARI BAKTI MANDIRI
REAL ESTATE INDONESIA
(REI)
Subsidi : 0 Unit
Terjual Subsidi : 68 Unit
Komersil : 0 Unit
Terjual Komersil : 0 Unit
Lihat Siteplan Digital




Harga: Rp 173.000.000
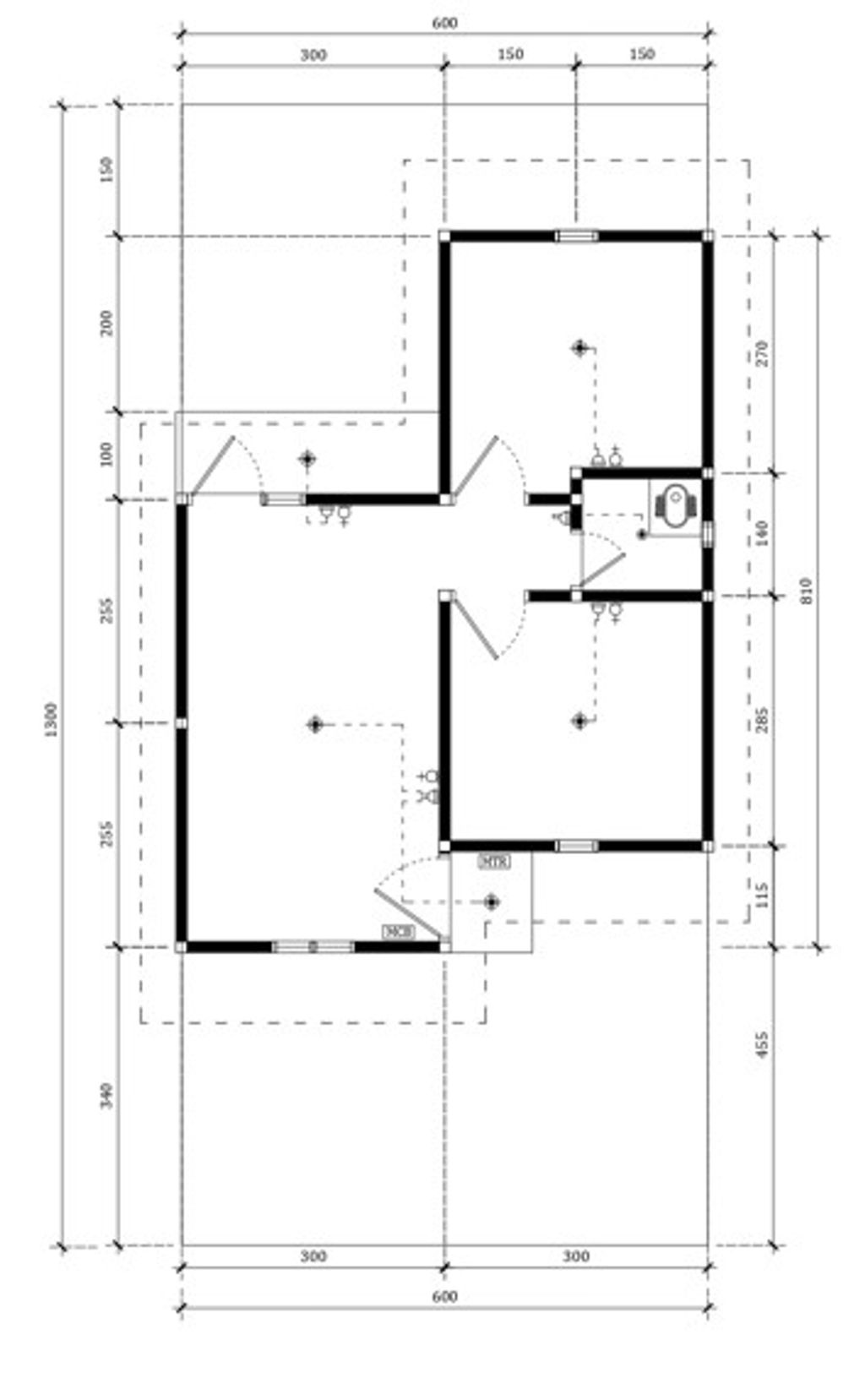
Luas Bangunan: 36m 2
Luas Lahan: 78m 2
Kamar Tidur: 2
Kamar Mandi: 1
a. Atap
Menggunakan Rangka Baja Ringan,Atap Spandek
b. Dinding
Pasangan Bata Merah,Kolom Bertulang,Plaster Acian & Cat
c. Lantai & Pondasi
Menggunakan Keramik 40x40 & Pasangan Batu Gunung Slof Bertulang