ID Lokasi : MBO0920022020T002
ACEH, KAB ACEH BARAT, Meureubo, Ranto Panyang Timur
PT RAFA GRAHA MANDIRI
REAL ESTATE INDONESIA
(REI)
Subsidi : 1 Unit
Terjual Subsidi : 20 Unit
Komersil : 0 Unit
Terjual Komersil : 0 Unit
Lihat Siteplan DigitalJalan Keuramat Komplek Griya Mahoni no. 01 ACEH, KAB ACEH BARAT, Meureubo, Ranto Panyang Timur
Telp : 085260803822
Email : rafagrahamandiri@gmail.com
Website : www.griyamahoni.co.id





Harga: Rp 140.000.000
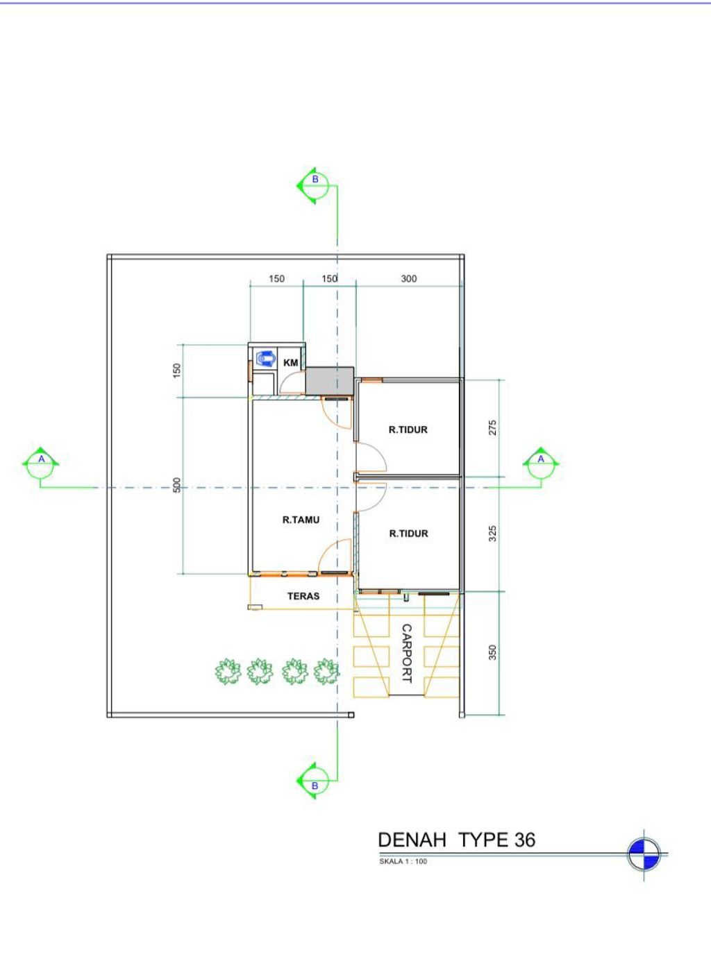
Luas Bangunan: 36m 2
Luas Lahan: 136m 2
Kamar Tidur: 2
Kamar Mandi: 1
a. Atap
genteng metal
b. Dinding
bata di plaster
c. Lantai & Pondasi
keramik & batu kali


Harga: Rp 140.000.000
Luas Bangunan: 36m 2
Luas Lahan: 112m 2
Kamar Tidur: 2
Kamar Mandi: 1
a. Atap
rangka baja dan genteng
b. Dinding
batu bata di plaster
c. Lantai & Pondasi
keramik & batu kali


Harga: Rp 150.500.000
Luas Bangunan: 36m 2
Luas Lahan: 125m 2
Kamar Tidur: 2
Kamar Mandi: 1
a. Atap
baja ringan
b. Dinding
batu bata dipalster/cat
c. Lantai & Pondasi
keramik & batu kali


Harga: Rp 166.000.000
Luas Bangunan: 36m 2
Luas Lahan: 125m 2
Kamar Tidur: 2
Kamar Mandi: 1
a. Atap
Baja Ringan
b. Dinding
Batu Bata dipalster/cat
c. Lantai & Pondasi
Keramik & Batu kali


Harga: Rp 166.000.000
Luas Bangunan: 36m 2
Luas Lahan: 139m 2
Kamar Tidur: 2
Kamar Mandi: 1
a. Atap
Genteng Metal
b. Dinding
Bata di Plaster
c. Lantai & Pondasi
Keramik & Batu Kali
Jalan Keuramat Komplek Griya Mahoni no. 01 ACEH, KAB ACEH BARAT, Meureubo, Ranto Panyang Timur
Telp : 085260803822
Email : rafagrahamandiri@gmail.com
Website : www.griyamahoni.co.id