ID Lokasi : MJK1120062020T002
JAWA TIMUR, KAB MOJOKERTO, Puri, Puri
PERSADA BHINNEKA TIMUR
REAL ESTATE INDONESIA
(REI)
Subsidi : 0 Unit
Terjual Subsidi : 66 Unit
Komersil : 0 Unit
Terjual Komersil : 4 Unit
Lihat Siteplan DigitalJl. Kedungsari no. 1A JAWA TIMUR, KOTA MOJOKERTO, Magersari, Gedongan
Telp : 08113229222
Email : bhinnekaland@gmail.com
Website : Bhinnekaland.co.id





Harga: Rp 140.000.000
Luas Bangunan: 30m 2
Luas Lahan: 60m 2
Kamar Tidur: 2
Kamar Mandi: 1
a. Atap
Rangka Atap: Baja Ringan
Penutup Atap: Genteng
b. Dinding
Bata Ringan (2 Dinding)
c. Lantai & Pondasi
Keramik & Batu Kali


Harga: Rp 150.500.000
Luas Bangunan: 30m 2
Luas Lahan: 60m 2
Kamar Tidur: 2
Kamar Mandi: 1
a. Atap
Rangka Atap: Baja Ringan
Penutup Atap: Genteng
b. Dinding
Bata Ringan (2 dinding)
c. Lantai & Pondasi
Keramik & Batu Kali


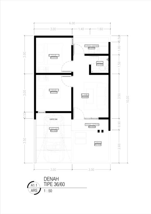
Harga: Rp 200.000.000
Luas Bangunan: 36m 2
Luas Lahan: 60m 2
Kamar Tidur: 2
Kamar Mandi: 1
a. Atap
Rangka Atap: Baja Ringan
Penutup Atap: Genteng
b. Dinding
Bata Ringan (2 Dinding)
c. Lantai & Pondasi
Keramik
Kamar Mandi memperoleh Kloset Duduk Otomatis & Batu Kali
Jl. Kedungsari no. 1A JAWA TIMUR, KOTA MOJOKERTO, Magersari, Gedongan
Telp : 08113229222
Email : bhinnekaland@gmail.com
Website : Bhinnekaland.co.id