GRIYA PESONA LEPPANGAN

ID Lokasi : MJN0110092020T003
SULAWESI BARAT, KAB MAJENE, Banggae, Totoli
KARYA LEPPANGAN MANDAR
REAL ESTATE INDONESIA (REI)


Status Rumah

Subsidi : 2 Unit

Terjual Subsidi : 1 Unit

Komersil : 0 Unit

Terjual Komersil : 0 Unit

Lihat Siteplan Digital

Peta Lokasi



Kantor Pemasaran

JLN. JEND. AHMAD YANI. NO 86 KEL. TOTOLI KEC. BANGGAE KAB. MAJENE PROV. SULAWESI BARAT no. 86 SULAWESI BARAT, KAB MAJENE, Banggae, Totoli

Telp : 0823 9353 5535

Email : chaink.fc@gmail.com

Website :

Foto Lokasi


foto gerbang perumahan GRIYA PESONA LEPPANGAN
Foto Gerbang/Jalan Utama
foto contoh rumah perumahan GRIYA PESONA LEPPANGAN
Foto Rumah Contoh
foto posisi tengah perumahan GRIYA PESONA LEPPANGAN
Foto Posisi Tengah Lokasi

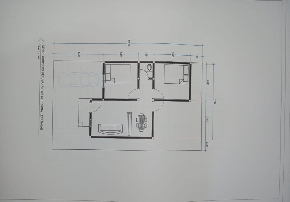
Tipe Rumah


1. Tipe 36 (subsidi)
foto tampak rumah tipe 36 perumahan GRIYA PESONA LEPPANGAN
foto denah rumah tipe 36 perumahan GRIYA PESONA LEPPANGAN

Harga: Rp 156

Luas Bangunan: 36m 2

Luas Lahan: 84m 2

Kamar Tidur: 2

Kamar Mandi: 1

Spesifikasi Teknis

a. Atap
Atap Spandek Rangka Baja ringan

b. Dinding
Bata Merah Finishing Plester Aci Dan Cat

c. Lantai & Pondasi
Full Keramik & Batu Gunung


Peta Lokasi


Kantor Pemasaran

JLN. JEND. AHMAD YANI. NO 86 KEL. TOTOLI KEC. BANGGAE KAB. MAJENE PROV. SULAWESI BARAT no. 86 SULAWESI BARAT, KAB MAJENE, Banggae, Totoli

Telp : 0823 9353 5535

Email : chaink.fc@gmail.com

Website :