Griya Pesona Leppangan

ID Lokasi : MJN0110092021T001
SULAWESI BARAT, KAB MAJENE, Banggae, Totoli
KARYA LEPPANGAN MANDAR
REAL ESTATE INDONESIA (REI)


Status Rumah

Subsidi : 4 Unit

Terjual Subsidi : 30 Unit

Komersil : 0 Unit

Terjual Komersil : 0 Unit

Lihat Siteplan Digital

Peta Lokasi



Kantor Pemasaran

Jl. Jend. A Yani Lingk. Deteng - Deteng no. 86 SULAWESI BARAT, KAB MAJENE, Banggae, Totoli

Telp : 082343591699

Email : chaink.fc@gmail.com

Website :

Foto Lokasi


foto gerbang perumahan Griya Pesona Leppangan
Foto Gerbang/Jalan Utama
foto contoh rumah perumahan Griya Pesona Leppangan
Foto Rumah Contoh
foto posisi tengah perumahan Griya Pesona Leppangan
Foto Posisi Tengah Lokasi

Tipe Rumah


1. Tipe 36 (subsidi)
foto tampak rumah tipe 36 perumahan Griya Pesona Leppangan
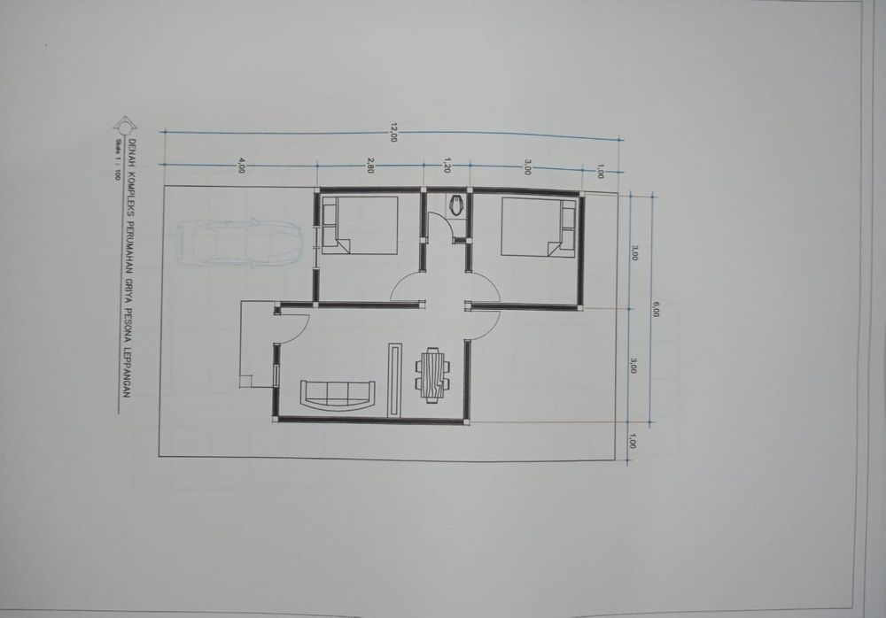
foto denah rumah tipe 36 perumahan Griya Pesona Leppangan

Harga: Rp 156

Luas Bangunan: 36m 2

Luas Lahan: 84m 2

Kamar Tidur: 2

Kamar Mandi: 1

Spesifikasi Teknis

a. Atap
Rangka Bajaringan atap Spandek

b. Dinding
Batu merah plesteran acian dan cat finishing

c. Lantai & Pondasi
keramik full & Batu gunung


Peta Lokasi


Kantor Pemasaran

Jl. Jend. A Yani Lingk. Deteng - Deteng no. 86 SULAWESI BARAT, KAB MAJENE, Banggae, Totoli

Telp : 082343591699

Email : chaink.fc@gmail.com

Website :