ID Lokasi : MJN0810082024T001
SULAWESI BARAT, KAB MAJENE, Banggae Timur, Tande Timur
BERKAH AMANAH LESTARI
APERSI BERSATU
(AB)
Subsidi : 0 Unit
Terjual Subsidi : 7 Unit
Komersil : 0 Unit
Terjual Komersil : 0 Unit
Lihat Siteplan DigitalJl. Dewi Sartika no. 40 SULAWESI BARAT, KAB POLEWALI MANDAR, Wonomulyo, Banua Baru
Telp : 081342455599
Email : ptberkahamanahlestari23@gmail.com
Website : -





Harga: Rp 173.000.000
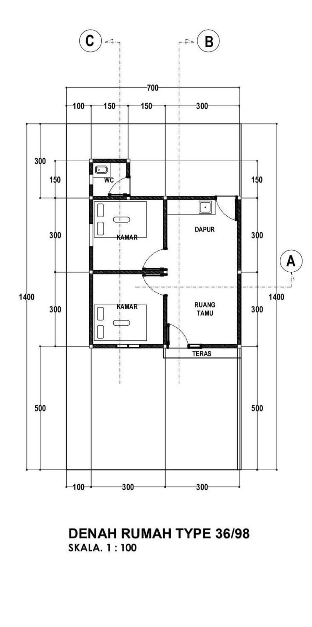
Luas Bangunan: 36m 2
Luas Lahan: 98m 2
Kamar Tidur: 2
Kamar Mandi: 1
a. Atap
Atap: Spandec, baja Ringan
b. Dinding
Dinding: Bata Merah, Plester & Aci
c. Lantai & Pondasi
Tegel 40x30 & Batu kali/gunung
Jl. Dewi Sartika no. 40 SULAWESI BARAT, KAB POLEWALI MANDAR, Wonomulyo, Banua Baru
Telp : 081342455599
Email : ptberkahamanahlestari23@gmail.com
Website : -