ID Lokasi : MJY1120072024T001
JAWA TIMUR, KAB MADIUN, Mejayan, Kaligunting
PT BUKIT BINTANG SUKSES MAGETAN
PENGEMBANG INDONESIA
(PI)
Subsidi : 177 Unit
Terjual Subsidi : 4 Unit
Komersil : 0 Unit
Terjual Komersil : 0 Unit
Lihat Siteplan Digitalperumahan Griya Permata Asri blok A no. 12 JAWA TIMUR, KAB MADIUN, Mejayan, Kaligunting
Telp : 082312222354
Email : pt.suksesmagetan@gmail.com
Website : -





Harga: Rp 166.000.000
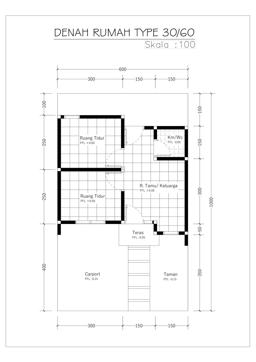
Luas Bangunan: 30m 2
Luas Lahan: 60m 2
Kamar Tidur: 2
Kamar Mandi: 1
a. Atap
RANGKA BAJA RINGAN ATAP GENTENG
b. Dinding
PASANGAN BATA MERAH/BATA RINGAN, PLESTERAN, ACIAN DAN PENGECETAN
c. Lantai & Pondasi
PASANGAN KERAMIK & PASANGAN BATU KALI/GUNUNG
perumahan Griya Permata Asri blok A no. 12 JAWA TIMUR, KAB MADIUN, Mejayan, Kaligunting
Telp : 082312222354
Email : pt.suksesmagetan@gmail.com
Website : -