ID Lokasi : MKD1020042026T001
JAWA TENGAH, KAB MAGELANG, Mertoyudan, Kalinegoro
PT UNILOA ARDIYANTO INVESTAMA
PERKUMPULAN ASOSIASI PENGEMBANG PERUMAHAN DAN PERMUKIMAN SELURUH INDONESIA
(APERSI)
Subsidi : 87 Unit
Terjual Subsidi : 0 Unit
Komersil : 0 Unit
Terjual Komersil : 0 Unit
Lihat Siteplan DigitalJl. Sarwo Edi Wibowo, Ruko Grand Maris no. B1 JAWA TENGAH, KAB MAGELANG, Mertoyudan, Banyurojo
Telp : 081288880800
Email : marketingmbnmagelang@gmail.com
Website : https://marison.id/





Harga: Rp 166.000.000
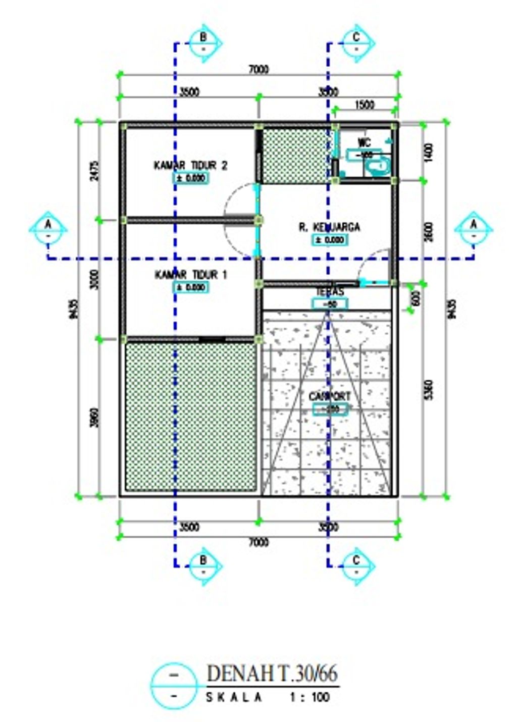
Luas Bangunan: 30m 2
Luas Lahan: 60m 2
Kamar Tidur: 2
Kamar Mandi: 1
a. Atap
Galvalum Pasir
b. Dinding
Bata Merah
c. Lantai & Pondasi
Keramik & Batu Kali


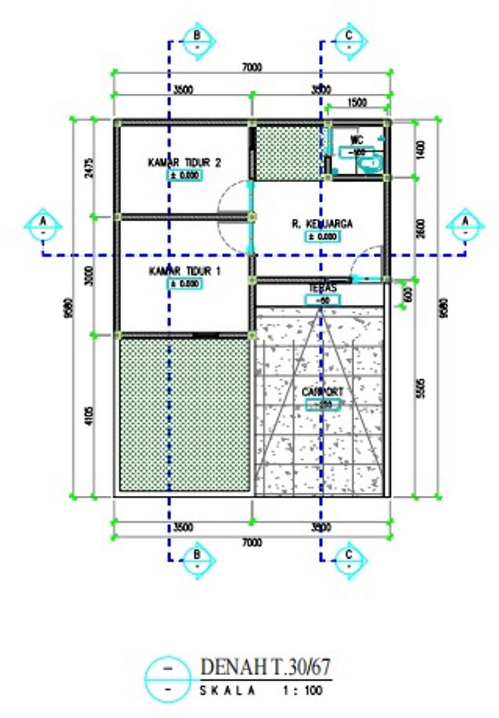
Harga: Rp 166.000.000
Luas Bangunan: 30m 2
Luas Lahan: 62m 2
Kamar Tidur: 2
Kamar Mandi: 1
a. Atap
Galvalum Pasir
b. Dinding
Bata Merah
c. Lantai & Pondasi
Keramik & Batu Kali


Harga: Rp 166.000.000
Luas Bangunan: 30m 2
Luas Lahan: 63m 2
Kamar Tidur: 2
Kamar Mandi: 1
a. Atap
Galvalum Pasir
b. Dinding
Bata Merah
c. Lantai & Pondasi
Keramik & Batu Kali


Harga: Rp 166.000.000
Luas Bangunan: 30m 2
Luas Lahan: 64m 2
Kamar Tidur: 2
Kamar Mandi: 1
a. Atap
Galvalum Pasir
b. Dinding
Bata Merah
c. Lantai & Pondasi
Keramik & Batu Kali


Harga: Rp 166.000.000
Luas Bangunan: 30m 2
Luas Lahan: 65m 2
Kamar Tidur: 2
Kamar Mandi: 1
a. Atap
Galvalum Pasir
b. Dinding
Bata Merah
c. Lantai & Pondasi
Keramik & Batu Kali


Harga: Rp 166.000.000
Luas Bangunan: 30m 2
Luas Lahan: 66m 2
Kamar Tidur: 2
Kamar Mandi: 1
a. Atap
Galvalum Pasir
b. Dinding
Bata Merah
c. Lantai & Pondasi
Keramik & Batu Kali


Harga: Rp 166.000.000
Luas Bangunan: 30m 2
Luas Lahan: 67m 2
Kamar Tidur: 2
Kamar Mandi: 1
a. Atap
Galvalum Pasir
b. Dinding
Bata Merah
c. Lantai & Pondasi
Keramik & Batu Kali


Harga: Rp 166.000.000
Luas Bangunan: 30m 2
Luas Lahan: 60m 2
Kamar Tidur: 2
Kamar Mandi: 1
a. Atap
Galvalum Pasir
b. Dinding
Bata Ringan
c. Lantai & Pondasi
Keramik & Batu Kali


Harga: Rp 166.000.000
Luas Bangunan: 30m 2
Luas Lahan: 68m 2
Kamar Tidur: 2
Kamar Mandi: 1
a. Atap
Galvalum Pasir
b. Dinding
Bata Merah
c. Lantai & Pondasi
Keramik & Batu Kali


Harga: Rp 166.000.000
Luas Bangunan: 30m 2
Luas Lahan: 71m 2
Kamar Tidur: 2
Kamar Mandi: 1
a. Atap
Galvalum Pasir
b. Dinding
Bata Merah
c. Lantai & Pondasi
Keramik & Batu Kali


Harga: Rp 166.000.000
Luas Bangunan: 30m 2
Luas Lahan: 74m 2
Kamar Tidur: 2
Kamar Mandi: 1
a. Atap
Galvalum Pasir
b. Dinding
Bata Merah
c. Lantai & Pondasi
Keramik & Batu Kali


Harga: Rp 166.000.000
Luas Bangunan: 30m 2
Luas Lahan: 75m 2
Kamar Tidur: 2
Kamar Mandi: 1
a. Atap
Galvalum Pasir
b. Dinding
Bata Merah
c. Lantai & Pondasi
Keramik & Batu Kali


Harga: Rp 166.000.000
Luas Bangunan: 30m 2
Luas Lahan: 85m 2
Kamar Tidur: 2
Kamar Mandi: 1
a. Atap
Galvalum Pasir
b. Dinding
Bata Merah
c. Lantai & Pondasi
Keramik & Batu Kali


Harga: Rp 166.000.000
Luas Bangunan: 30m 2
Luas Lahan: 62m 2
Kamar Tidur: 2
Kamar Mandi: 1
a. Atap
Galvalum Pasir
b. Dinding
Bata Ringan
c. Lantai & Pondasi
Keramik & Batu Kali


Harga: Rp 166.000.000
Luas Bangunan: 30m 2
Luas Lahan: 63m 2
Kamar Tidur: 2
Kamar Mandi: 1
a. Atap
Galvalum Pasir
b. Dinding
Bata Ringan
c. Lantai & Pondasi
Keramik & Batu Kali


Harga: Rp 166.000.000
Luas Bangunan: 30m 2
Luas Lahan: 65m 2
Kamar Tidur: 2
Kamar Mandi: 1
a. Atap
Galvalum Pasir
b. Dinding
Bata Ringan
c. Lantai & Pondasi
Keramik & Batu Kali


Harga: Rp 166.000.000
Luas Bangunan: 30m 2
Luas Lahan: 70m 2
Kamar Tidur: 2
Kamar Mandi: 1
a. Atap
Galvalum Pasir
b. Dinding
Bata Ringan
c. Lantai & Pondasi
Keramik
& Batu Kali


Harga: Rp 166.000.000
Luas Bangunan: 30m 2
Luas Lahan: 87m 2
Kamar Tidur: 2
Kamar Mandi: 1
a. Atap
Galvalum Pasir
b. Dinding
Bata Ringan
c. Lantai & Pondasi
Keramik & Batu Kali


Harga: Rp 166.000.000
Luas Bangunan: 30m 2
Luas Lahan: 69m 2
Kamar Tidur: 2
Kamar Mandi: 1
a. Atap
Galvalum Pasir
b. Dinding
Bata Ringan
c. Lantai & Pondasi
Keramik & Batu Kali


Harga: Rp 166.000.000
Luas Bangunan: 30m 2
Luas Lahan: 69m 2
Kamar Tidur: 2
Kamar Mandi: 1
a. Atap
Galvalum Pasir
b. Dinding
Bata Ringan
c. Lantai & Pondasi
Keramik & Batu Kali
Jl. Sarwo Edi Wibowo, Ruko Grand Maris no. B1 JAWA TENGAH, KAB MAGELANG, Mertoyudan, Banyurojo
Telp : 081288880800
Email : marketingmbnmagelang@gmail.com
Website : https://marison.id/