ID Lokasi : MKD1920032026T001
JAWA TENGAH, KAB MAGELANG, Tegalrejo, Sidorejo
PT SAVANA CAHAYA ABADI
Himpunan Pengembang Permukiman dan Perumahan Rakyat
(HIMPERRA)
Subsidi : 89 Unit
Terjual Subsidi : 9 Unit
Komersil : 0 Unit
Terjual Komersil : 0 Unit
Lihat Siteplan Digital

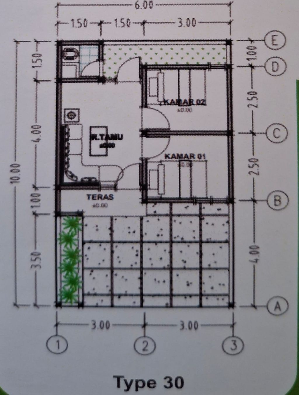
Harga: Rp 166.000.000
Luas Bangunan: 30m 2
Luas Lahan: 60m 2
Kamar Tidur: 2
Kamar Mandi: 1
a. Atap
Atab baja ringan dengan atab galvalum
b. Dinding
Dinding Hebel dengan plaster aci
c. Lantai & Pondasi
lantai keramik 40 x 40 & pondasi batu kali