ID Lokasi : MKS0910042025T001
SULAWESI SELATAN, KOTA MAKASSAR, Panakkukang, Pampang
PT MAHA KARYA HALUOLEO
REAL ESTATE INDONESIA
(REI)
Subsidi : 0 Unit
Terjual Subsidi : 0 Unit
Komersil : 0 Unit
Terjual Komersil : 0 Unit
Lihat Siteplan Digital




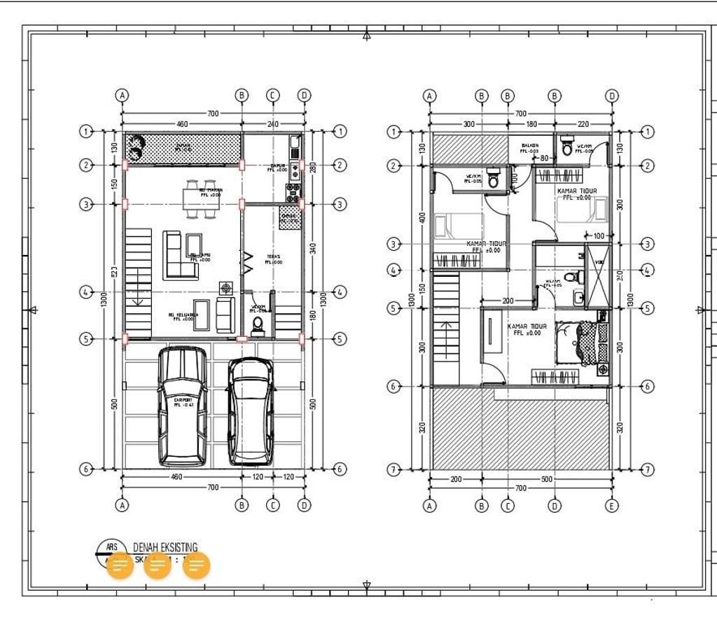
Harga: Rp 700.000.000
Luas Bangunan: 125m 2
Luas Lahan: 98m 2
Kamar Tidur: 3
Kamar Mandi: 4
a. Atap
Rangka baja ringan, atap spandek
b. Dinding
Bata merah, plester, aci, plamur, cat+
c. Lantai & Pondasi
Keramik 60x60 & Cakar ayam, pondasi batu kali


Harga: Rp 500.000.000
Luas Bangunan: 65m 2
Luas Lahan: 78m 2
Kamar Tidur: 3
Kamar Mandi: 3
a. Atap
rangka Baja ringan, atap spandek
b. Dinding
Bata merah, plester, aci, cat, palmur
c. Lantai & Pondasi
keramik 60x60 & cakar ayam, pondasi, batu kali


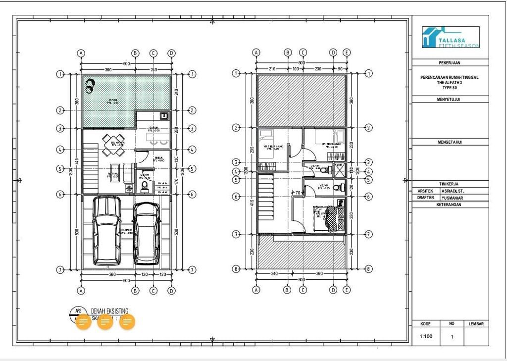
Harga: Rp 600.000.000
Luas Bangunan: 80m 2
Luas Lahan: 91m 2
Kamar Tidur: 3
Kamar Mandi: 4
a. Atap
Rangka baja ringan, atap spandek
b. Dinding
bata merah, plester, aci, plamur, cat
c. Lantai & Pondasi
keramik 60x60 & cakar ayam, pondasi batu kali