LAURUS FREESIA

ID Lokasi : MKS1010012024T006
SULAWESI SELATAN, KOTA MAKASSAR, Tamalate, Barombong
GOWA MAKASSAR TOURISM DEVELOPMENT TBK
REAL ESTATE INDONESIA (REI)


Status Rumah

Subsidi : 0 Unit

Terjual Subsidi : 0 Unit

Komersil : 2 Unit

Terjual Komersil : 0 Unit

Lihat Siteplan Digital

Peta Lokasi



Kantor Pemasaran

Jl. Boulevard Green River View, Ruko Magnolia no. 02 SULAWESI SELATAN, KOTA MAKASSAR, Tamalate, Tanjung Merdeka

Telp : 0411-8113456

Email : corporate.secretary@tanjungbunga.com

Website : www.tanjungbunga.com

Foto Lokasi


foto gerbang perumahan LAURUS FREESIA
Foto Gerbang/Jalan Utama
foto contoh rumah perumahan LAURUS FREESIA
Foto Rumah Contoh
foto posisi tengah perumahan LAURUS FREESIA
Foto Posisi Tengah Lokasi

Tipe Rumah


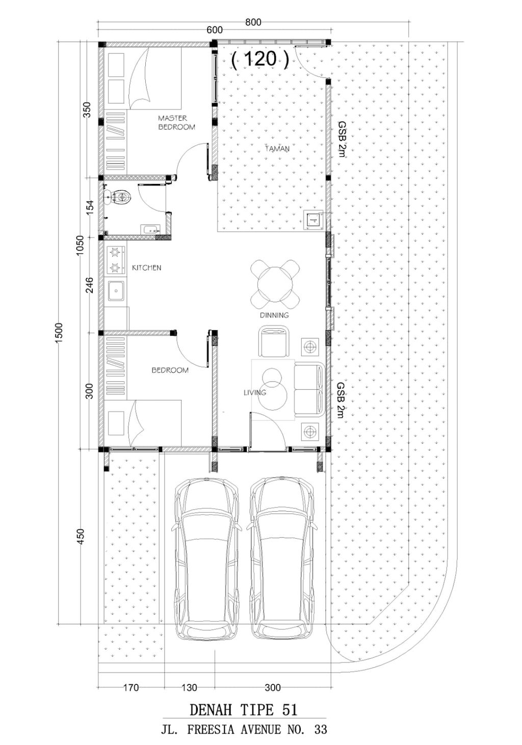
1. Tipe FRAV-0033 (komersil)
foto tampak rumah tipe FRAV-0033 perumahan LAURUS FREESIA
foto denah rumah tipe FRAV-0033 perumahan LAURUS FREESIA

Harga: Rp 977.000.000

Luas Bangunan: 51m 2

Luas Lahan: 120m 2

Kamar Tidur: 2

Kamar Mandi: 1

Spesifikasi Teknis

a. Atap
GENTENG BETON

b. Dinding
BATU BATA

c. Lantai & Pondasi
KERAMIK & BATU KALI

2. Tipe FRCR-0007 (komersil)
foto tampak rumah tipe FRCR-0007 perumahan LAURUS FREESIA
foto denah rumah tipe FRCR-0007 perumahan LAURUS FREESIA

Harga: Rp 470.300.000

Luas Bangunan: 33m 2

Luas Lahan: 60m 2

Kamar Tidur: 2

Kamar Mandi: 1

Spesifikasi Teknis

a. Atap
GENTENG BETON

b. Dinding
BATU BATA

c. Lantai & Pondasi
KERAMIK & BATU KALI


Peta Lokasi


Kantor Pemasaran

Jl. Boulevard Green River View, Ruko Magnolia no. 02 SULAWESI SELATAN, KOTA MAKASSAR, Tamalate, Tanjung Merdeka

Telp : 0411-8113456

Email : corporate.secretary@tanjungbunga.com

Website : www.tanjungbunga.com