ID Lokasi : MKS1110022023T004
SULAWESI SELATAN, KOTA MAKASSAR, Biringkanaya, Daya
PT DAYA NIAGA CEMERLANG
REAL ESTATE INDONESIA
(REI)
Subsidi : 0 Unit
Terjual Subsidi : 0 Unit
Komersil : 0 Unit
Terjual Komersil : 18 Unit
Lihat Siteplan Digital




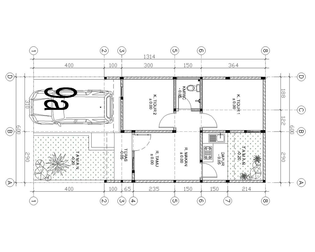
Harga: Rp 851.788.000
Luas Bangunan: 38m 2
Luas Lahan: 122m 2
Kamar Tidur: 1
Kamar Mandi: 1
a. Atap
Rangka atap baja ringan ditutup genteng beton flat
b. Dinding
Dinding batu bata diplester, diaci dan dicat
c. Lantai & Pondasi
Ruang Utama : Keramik 40 x 40
Teras depan dan dapur : Keramik 30 x 30
Lantai dan Dinding KM/MC : Keramik & Pondasi telapak beton/batu kali


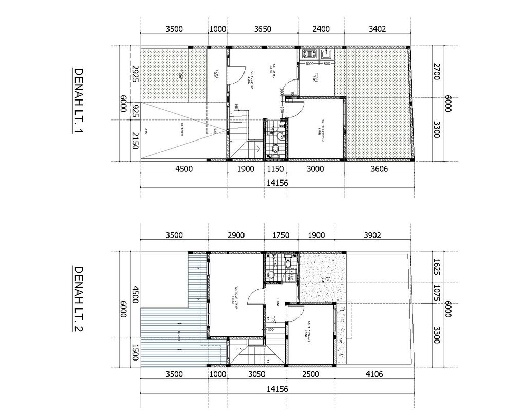
Harga: Rp 998.274.920
Luas Bangunan: 68m 2
Luas Lahan: 90m 2
Kamar Tidur: 3
Kamar Mandi: 2
a. Atap
Rangka baja ringan ditutup zincalume
b. Dinding
Dinding batu bata diplester, diaci dan dicat
c. Lantai & Pondasi
Ruang Utama : Keramik 60 x 60
Teras depan dan dapur : Keramik 40 x 40
Lantai KM/WC : Keramik 40 x 40
Dinding KM/WC : Keramik 25 x 40 & Pondasi poer & batu kali


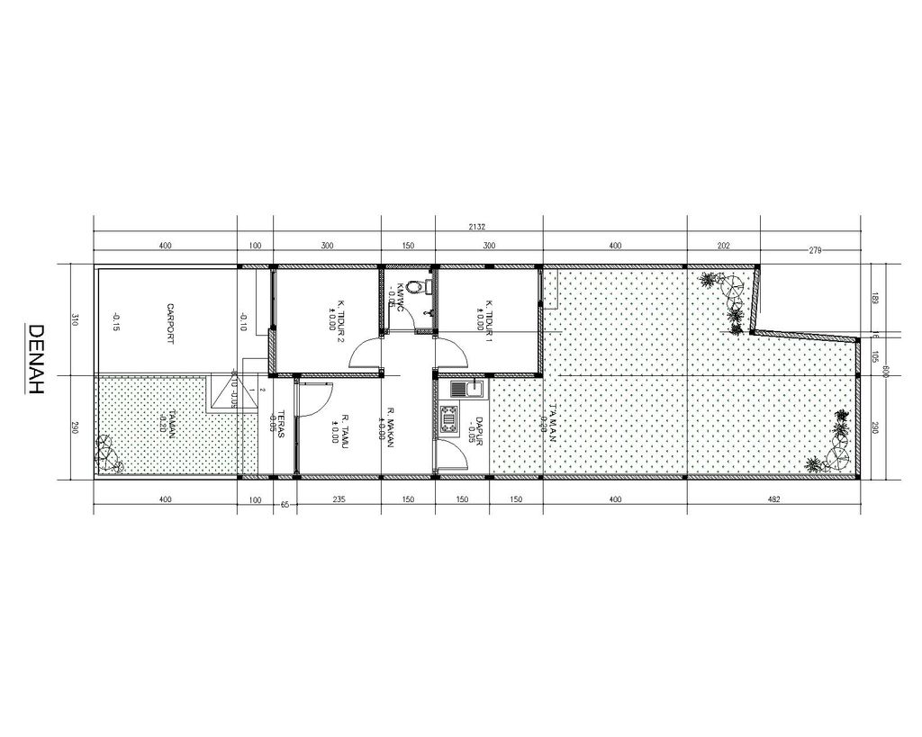
Harga: Rp 789.119.800
Luas Bangunan: 41m 2
Luas Lahan: 81m 2
Kamar Tidur: 2
Kamar Mandi: 1
a. Atap
Rangka atap baja ringan ditutup genteng beton flat
b. Dinding
Dinding batu bata diplester, diaci dan dicat
c. Lantai & Pondasi
Ruang Tamu : Keramik 40 x 40
Teras depan dan Belakang : Keramik 30 x 30
Lantai dan dinding KM/WC : Keramik 20 x 20 & Pondasi batu kali


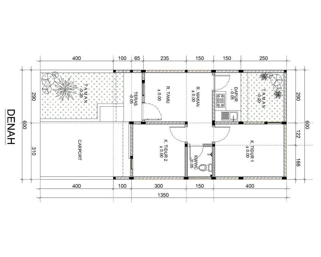
Harga: Rp 750.000.000
Luas Bangunan: 40m 2
Luas Lahan: 79m 2
Kamar Tidur: 2
Kamar Mandi: 1
a. Atap
Atap : Zincalume
Rangka Atap : Rangka Baja Ringan
b. Dinding
Batu Bata, Diplester, Aci & Cat
c. Lantai & Pondasi
Lantai : Keramik Tile 60 x 60
KM/WC : Keramik Lantai 40 x 40
: Keramik Dinding 25 x 40 & Pondasi Poer & Batu Kali