ID Lokasi : MLG0410102026T001
JAWA TIMUR, KOTA MALANG, Sukun, Mulyorejo
CATHALINA
ASOSIASI PENGEMBANG DAN PEMASAR RUMAH NASIONAL
(ASPRUMNAS)
Subsidi : 0 Unit
Terjual Subsidi : 0 Unit
Komersil : 10 Unit
Terjual Komersil : 0 Unit
Lihat Siteplan Digital




Harga: Rp 524.370.000
Luas Bangunan: 40m 2
Luas Lahan: 77m 2
Kamar Tidur: 2
Kamar Mandi: 1
a. Atap
Rangka atap Galvalum
b. Dinding
Dinding bata merah diplester finishing cat
c. Lantai & Pondasi
Keramik 40x40 & Pondasi batu kali


Harga: Rp 540.645.000
Luas Bangunan: 36m 2
Luas Lahan: 85m 2
Kamar Tidur: 2
Kamar Mandi: 1
a. Atap
Rangka atap Galvalum
b. Dinding
Dinding bata merah diplester finishing cat
c. Lantai & Pondasi
Keramik 40 x 40 & Batu kali


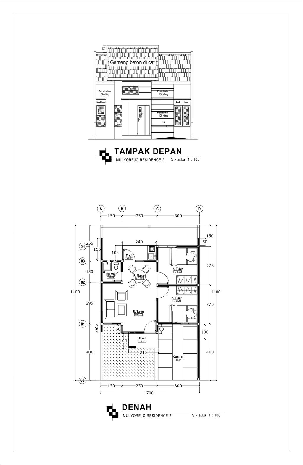
Harga: Rp 889.875.000
Luas Bangunan: 72m 2
Luas Lahan: 40m 2
Kamar Tidur: 0
Kamar Mandi: 2
a. Atap
Gording 6/12 dikoltir
b. Dinding
Bata merah
c. Lantai & Pondasi
keramik 40 x 40 & Foot plat 120 x 120