ID Lokasi : MRE0210092024T001
SUMATERA SELATAN, KAB MUARA ENIM, Muara Enim, Pasar I Muara Enim
BUKIT ENIM INDAH
REAL ESTATE INDONESIA
(REI)
Subsidi : 0 Unit
Terjual Subsidi : 0 Unit
Komersil : 1 Unit
Terjual Komersil : 5 Unit
Lihat Siteplan DigitalJl. Kopral Safe'i Pelitasari RT.02 RW.03 no. 10 SUMATERA SELATAN, KAB MUARA ENIM, Muara Enim, Pasar I Muara Enim
Telp : 0734421060
Email : pt.bukitenimindah@gmail.com
Website : https://beiproperty.id





Harga: Rp 410.000.000
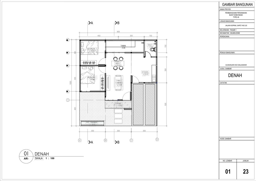
Luas Bangunan: 45m 2
Luas Lahan: 90m 2
Kamar Tidur: 2
Kamar Mandi: 1
a. Atap
Atap rangka baja ringan dan metal berpasir/multiroof
b. Dinding
Dinding batubata di plester dan finishing cat
c. Lantai & Pondasi
Lantai Granite 60 x 60
Lantai keramik 60 x 60 & Pondasi batu kali


Harga: Rp 445.000.000
Luas Bangunan: 45m 2
Luas Lahan: 90m 2
Kamar Tidur: 2
Kamar Mandi: 1
a. Atap
Atap rangka baja ringan dan metal berpasir/multiroof
b. Dinding
Dinding batubata di plester dan finishing cat
c. Lantai & Pondasi
Lantai Granite 60 x 60 Lantai Keramik 60 x 60 & Pondasi Batu kali


Harga: Rp 370.000.000
Luas Bangunan: 45m 2
Luas Lahan: 90m 2
Kamar Tidur: 2
Kamar Mandi: 1
a. Atap
Atap rangka baja ringan dan metal berpasir/multiroof
b. Dinding
Dinding batubata di plester dan finishing cat
c. Lantai & Pondasi
Lantai Granite 60 x 60 Lantai Keramik 60 x 60 & Pondasi Batu kali


Harga: Rp 435.000.000
Luas Bangunan: 45m 2
Luas Lahan: 90m 2
Kamar Tidur: 2
Kamar Mandi: 1
a. Atap
Atap rangka baja ringan dan metal berpasir/multiroof
b. Dinding
Dinding batubata di plester dan finishing cat
c. Lantai & Pondasi
Lantai Granite 60 x 60 Lantai Keramik 60 x 60 & Pondasi Batu Kali


Harga: Rp 351.666.670
Luas Bangunan: 45m 2
Luas Lahan: 90m 2
Kamar Tidur: 2
Kamar Mandi: 1
a. Atap
Atap rangka baja ringan dan metal berpasir/multiroof
b. Dinding
Dinding batubata di plester dan finishing cat
c. Lantai & Pondasi
Lantai Granite 60 x 60 Lantai Keramik 60 x 60 & Pondasi Batu kali


Harga: Rp 398.000.000
Luas Bangunan: 45m 2
Luas Lahan: 90m 2
Kamar Tidur: 2
Kamar Mandi: 1
a. Atap
Atap rangka baja ringan dan metal berpasir/multiroof
b. Dinding
Dinding batubata di plester dan finishing cat
c. Lantai & Pondasi
Lantai Granite 60 x 60 Lantai keramik 60 x 60 & Pondasi batu kali
Jl. Kopral Safe'i Pelitasari RT.02 RW.03 no. 10 SUMATERA SELATAN, KAB MUARA ENIM, Muara Enim, Pasar I Muara Enim
Telp : 0734421060
Email : pt.bukitenimindah@gmail.com
Website : https://beiproperty.id