Aufa Sejahtera

ID Lokasi : MRH0510032020T010
KALIMANTAN SELATAN, KAB BARITO KUALA, Alalak, Handil Bakti
AUFA JAYA PERSADA
ALIANSI PENGEMBANG PERUMAHAN NASIONAL JAYA (APPERNAS JAYA)


Status Rumah

Subsidi : 10 Unit

Terjual Subsidi : 23 Unit

Komersil : 0 Unit

Terjual Komersil : 1 Unit

Lihat Siteplan Digital

Peta Lokasi



Kantor Pemasaran

Jl. Mayjen Sutoyo S Ruko Zahra Kost Putri Laundry no. 1000 KALIMANTAN SELATAN, KOTA BANJARMASIN, Banjarmasin Barat, Pelambuan

Telp : 085387534892

Email : aufajayapersada21@gmail.com

Website :

Foto Lokasi


foto gerbang perumahan Aufa Sejahtera
Foto Gerbang/Jalan Utama
foto contoh rumah perumahan Aufa Sejahtera
Foto Rumah Contoh
foto posisi tengah perumahan Aufa Sejahtera
Foto Posisi Tengah Lokasi

Tipe Rumah


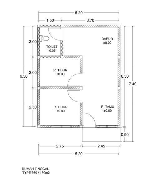
1. Tipe 36 /150 Harga 164jt (subsidi)
foto tampak rumah tipe 36 /150 Harga 164jt perumahan Aufa Sejahtera
foto denah rumah tipe 36 /150 Harga 164jt perumahan Aufa Sejahtera

Harga: Rp 164.000.000

Luas Bangunan: 36m 2

Luas Lahan: 150m 2

Kamar Tidur: 2

Kamar Mandi: 1

Spesifikasi Teknis

a. Atap
Menggunakan Baja Ringan/Kayu Meranti Dengan Atap Metal Roof

b. Dinding
Dinding Bata Di Plester dan Di aci Kemudian Di Cat

c. Lantai & Pondasi
Lantai Ulin Dengan Keramik & Pondasi Cerucuk Galam 3 meter Dengan Tongkat 10 x 10

2. Tipe 36/150 (subsidi)
foto tampak rumah tipe 36/150 perumahan Aufa Sejahtera
foto denah rumah tipe 36/150 perumahan Aufa Sejahtera

Harga: Rp 142.000.000

Luas Bangunan: 36m 2

Luas Lahan: 150m 2

Kamar Tidur: 2

Kamar Mandi: 1

Spesifikasi Teknis

a. Atap
rangka baja ringan atap genteng metal roof

b. Dinding
bata ringan diplester, di cat

c. Lantai & Pondasi
di cor dan keramik 40x40 & galam tumbuk panjang kurang lebih 3M tongkat kayu ulin 10x10

3. Tipe 36/150 (177 JUTA) (subsidi)
foto tampak rumah tipe 36/150 (177 JUTA) perumahan Aufa Sejahtera
foto denah rumah tipe 36/150 (177 JUTA) perumahan Aufa Sejahtera

Harga: Rp 177.000.000

Luas Bangunan: 36m 2

Luas Lahan: 150m 2

Kamar Tidur: 2

Kamar Mandi: 1

Spesifikasi Teknis

a. Atap
Atap Dengan Kuda Kuda Ulin , Rangka Kayu dan Genteng Metal

b. Dinding
Bata di Plester serta di Aci

c. Lantai & Pondasi
Lantai Ulin di Cor serta di kermaik & Pancangan Galam di tumbuk dengan Tiang Pondasi Tongkat Ulin


Peta Lokasi


Kantor Pemasaran

Jl. Mayjen Sutoyo S Ruko Zahra Kost Putri Laundry no. 1000 KALIMANTAN SELATAN, KOTA BANJARMASIN, Banjarmasin Barat, Pelambuan

Telp : 085387534892

Email : aufajayapersada21@gmail.com

Website :