ID Lokasi : MRH0520182020T001
KALIMANTAN SELATAN, KAB BARITO KUALA, Alalak, Berangas
PT PESONA PURNAMA
REAL ESTATE INDONESIA
(REI)
Subsidi : 143 Unit
Terjual Subsidi : 896 Unit
Komersil : 2 Unit
Terjual Komersil : 104 Unit
Lihat Siteplan Digital




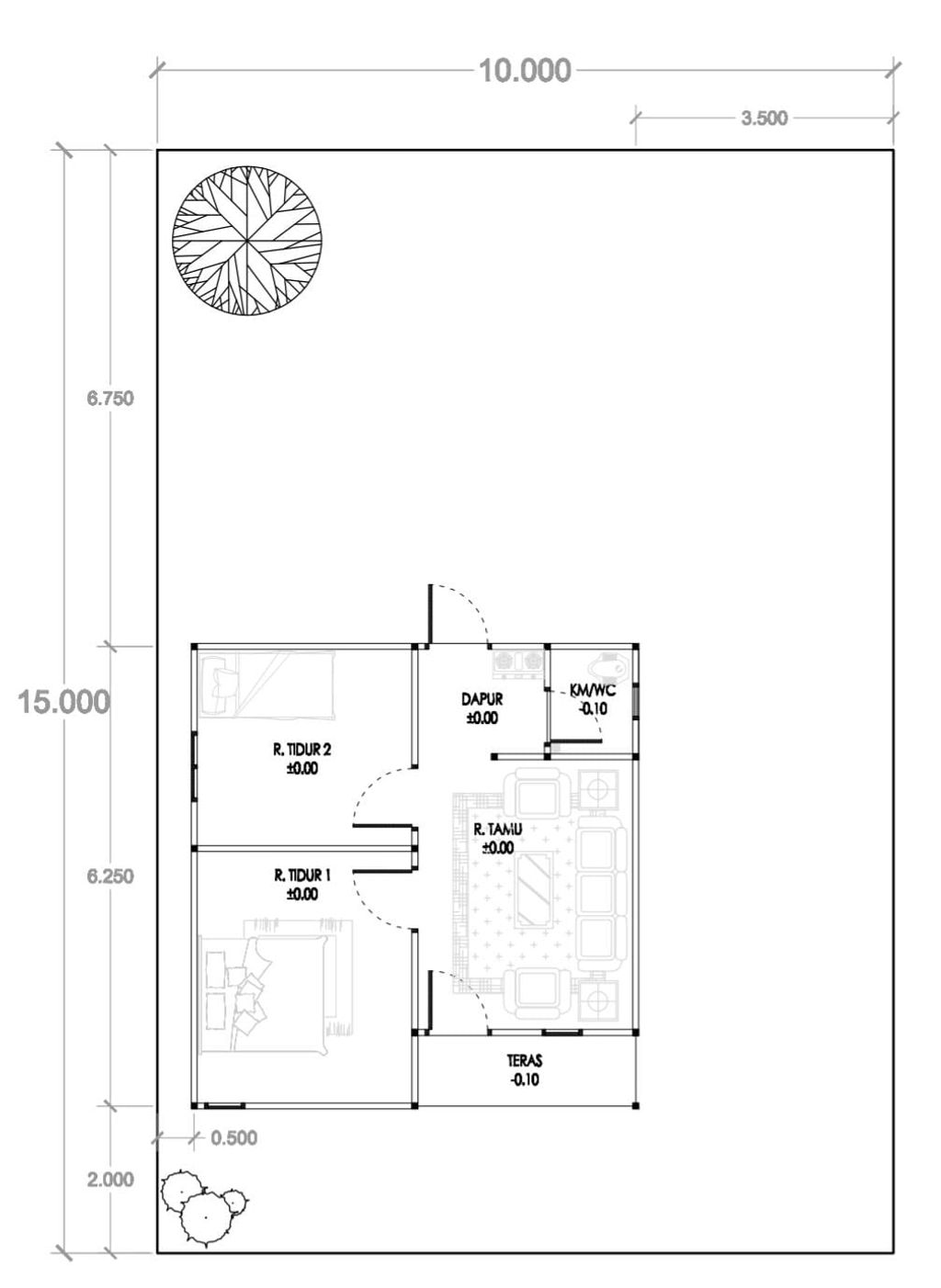
Harga: Rp 177.000.000
Luas Bangunan: 36m 2
Luas Lahan: 150m 2
Kamar Tidur: 2
Kamar Mandi: 1
a. Atap
METAL ROOF
b. Dinding
BATA DI PLESTER
c. Lantai & Pondasi
COR DAN KERAMIK 40X40 & TONGKAT ULIN 10X10


Harga: Rp 164.000.000
Luas Bangunan: 36m 2
Luas Lahan: 150m 2
Kamar Tidur: 2
Kamar Mandi: 1
a. Atap
METAL ROOF
b. Dinding
BATA DIPLESTER
c. Lantai & Pondasi
COR DAN KERAMIK 40x40 & GALAM CERUCUK


Harga: Rp 182.000.000
Luas Bangunan: 36m 2
Luas Lahan: 150m 2
Kamar Tidur: 2
Kamar Mandi: 1
a. Atap
METAL ROOF
b. Dinding
BATA DI PLESTER
c. Lantai & Pondasi
COR DAN KERAMIK 40X40 & TONGKAT ULIN 10X10


Harga: Rp 182.000.000
Luas Bangunan: 36m 2
Luas Lahan: 150m 2
Kamar Tidur: 2
Kamar Mandi: 1
a. Atap
METAL ROOF
b. Dinding
BATA DI PLESTER
c. Lantai & Pondasi
COR DAN KERAMIK 40x40 & TONGKAT ULIN 10x10