GRIYA MAXIMA PERMAI 2

ID Lokasi : MRJ0420042024T001
SUMATERA BARAT, KAB SIJUNJUNG, Sijunjung, Sijunjung
MAXIMA UTAMA JAYA
ALIANSI PENGEMBANG PERUMAHAN NASIONAL JAYA (APPERNAS JAYA)


Status Rumah

Subsidi : 2 Unit

Terjual Subsidi : 44 Unit

Komersil : 0 Unit

Terjual Komersil : 0 Unit

Lihat Siteplan Digital

Peta Lokasi



Kantor Pemasaran

PERUMAHAN GRIYA MAXIMA PERMAI no. A 8 SUMATERA BARAT, KAB SIJUNJUNG, Sijunjung, Sijunjung

Telp : 082287853755

Email : maximautamajaya@gmail.com

Website :

Foto Lokasi


foto gerbang perumahan GRIYA MAXIMA PERMAI 2
Foto Gerbang/Jalan Utama
foto contoh rumah perumahan GRIYA MAXIMA PERMAI 2
Foto Rumah Contoh
foto posisi tengah perumahan GRIYA MAXIMA PERMAI 2
Foto Posisi Tengah Lokasi

Tipe Rumah


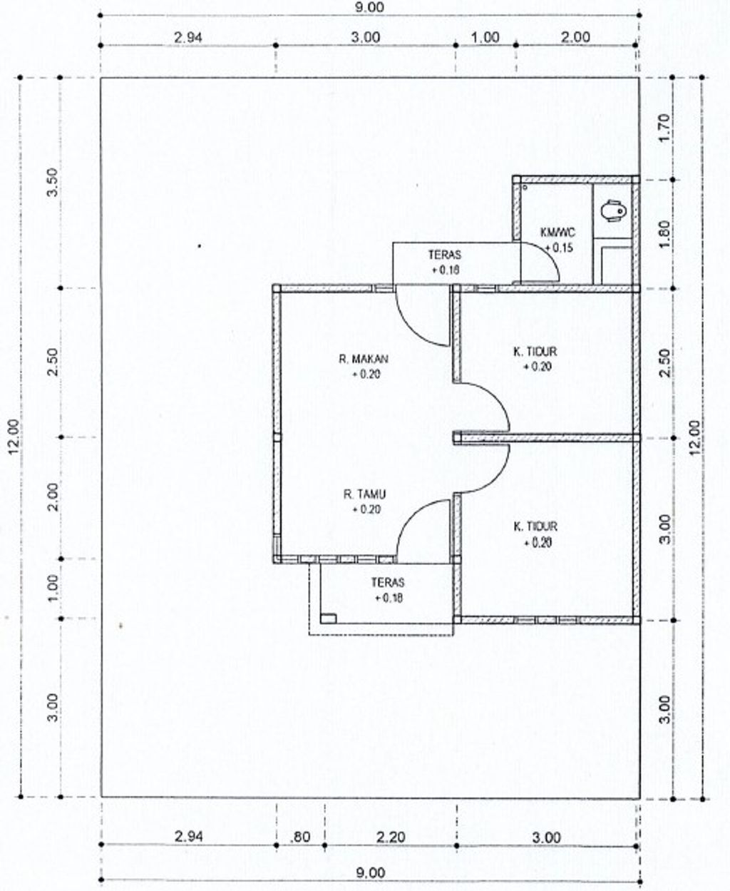
1. Tipe subsidi 36/108 (subsidi)
foto tampak rumah tipe subsidi 36/108 perumahan GRIYA MAXIMA PERMAI 2
foto denah rumah tipe subsidi 36/108 perumahan GRIYA MAXIMA PERMAI 2

Harga: Rp 166.000.000

Luas Bangunan: 36m 2

Luas Lahan: 108m 2

Kamar Tidur: 2

Kamar Mandi: 1

Spesifikasi Teknis

a. Atap
Rangka atap baja ringan, penutup atap genteng metal

b. Dinding
Pasangan bata , diplester, diaci

c. Lantai & Pondasi
Cor beton dilapis keramik & Pondasi batu bata


Peta Lokasi


Kantor Pemasaran

PERUMAHAN GRIYA MAXIMA PERMAI no. A 8 SUMATERA BARAT, KAB SIJUNJUNG, Sijunjung, Sijunjung

Telp : 082287853755

Email : maximautamajaya@gmail.com

Website :