Perumahan Buntara Residence

ID Lokasi : MRJ0620022024T001
SUMATERA BARAT, KAB SIJUNJUNG, Kamang Baru, Kamang
BUNTARA CEMERLANG SEJAHTERA
PERKUMPULAN ASOSIASI PENGEMBANG PERUMAHAN DAN PERMUKIMAN SELURUH INDONESIA (APERSI)


Status Rumah

Subsidi : 7 Unit

Terjual Subsidi : 20 Unit

Komersil : 0 Unit

Terjual Komersil : 0 Unit

Lihat Siteplan Digital

Peta Lokasi



Kantor Pemasaran

Jorong batang Kariang, Kenagarian Kamang, Kec. Kamang Baru no. 00 SUMATERA BARAT, KAB SIJUNJUNG, Kamang Baru, Kamang

Telp : 082324662982

Email : ptbuntaracemerlang6@gmail.com

Website :

Foto Lokasi


foto gerbang perumahan Perumahan Buntara Residence
Foto Gerbang/Jalan Utama
foto contoh rumah perumahan Perumahan Buntara Residence
Foto Rumah Contoh
foto posisi tengah perumahan Perumahan Buntara Residence
Foto Posisi Tengah Lokasi

Tipe Rumah


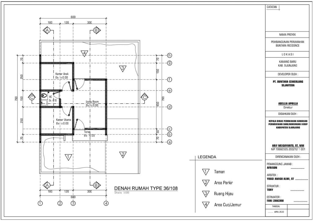
1. Tipe 36/108 (subsidi)
foto tampak rumah tipe 36/108 perumahan Perumahan Buntara Residence
foto denah rumah tipe 36/108 perumahan Perumahan Buntara Residence

Harga: Rp 162.000.000

Luas Bangunan: 36m 2

Luas Lahan: 108m 2

Kamar Tidur: 2

Kamar Mandi: 1

Spesifikasi Teknis

a. Atap
Kerangka kayu atap Montiruk

b. Dinding
BETON

c. Lantai & Pondasi
RABAT DAN ACI BIASA & Batu belah / Batu gunung

2. Tipe 45 (komersil)
foto tampak rumah tipe 45 perumahan Perumahan Buntara Residence
foto denah rumah tipe 45 perumahan Perumahan Buntara Residence

Harga: Rp 400.000.000

Luas Bangunan: 45m 2

Luas Lahan: 120m 2

Kamar Tidur: 2

Kamar Mandi: 2

Spesifikasi Teknis

a. Atap
Genteng Metal

b. Dinding
Batako dan plaster Aci cat luar & dalam

c. Lantai & Pondasi
Granit tile 60x60 & Batu Gunung


Peta Lokasi


Kantor Pemasaran

Jorong batang Kariang, Kenagarian Kamang, Kec. Kamang Baru no. 00 SUMATERA BARAT, KAB SIJUNJUNG, Kamang Baru, Kamang

Telp : 082324662982

Email : ptbuntaracemerlang6@gmail.com

Website :