Perumahan Pesona Irlana Permai

ID Lokasi : MTP0320072025T001
KALIMANTAN SELATAN, KOTA BANJARBARU, Liang Anggang, Landasan Ulin Barat
KARYA BANUA PERSADA
Himpunan Pengembang Permukiman dan Perumahan Rakyat (HIMPERRA)


Status Rumah

Subsidi : 57 Unit

Terjual Subsidi : 1 Unit

Komersil : 2 Unit

Terjual Komersil : 0 Unit

Lihat Siteplan Digital

Peta Lokasi



Kantor Pemasaran

Komplek Roemah Alam Kasturi No. C8 Kel/Desa. Syamsudin Noor Kec.Landasan Ulin Kota Banjarbaru Prov Kalimantan Selatan no. C8 KALIMANTAN SELATAN, KOTA BANJARBARU, Landasan Ulin, Syamsudin Noor

Telp : 081247206225

Email : karyabanuapersada@gmail.com

Website :

Foto Lokasi


foto gerbang perumahan Perumahan Pesona Irlana Permai
Foto Gerbang/Jalan Utama
foto contoh rumah perumahan Perumahan Pesona Irlana Permai
Foto Rumah Contoh
foto posisi tengah perumahan Perumahan Pesona Irlana Permai
Foto Posisi Tengah Lokasi

Tipe Rumah


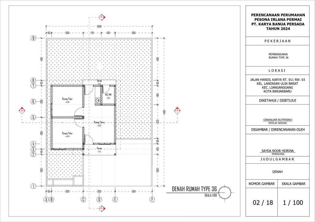
1. Tipe 36 (subsidi)
foto tampak rumah tipe 36 perumahan Perumahan Pesona Irlana Permai
foto denah rumah tipe 36 perumahan Perumahan Pesona Irlana Permai

Harga: Rp 182.000.000

Luas Bangunan: 36m 2

Luas Lahan: 140m 2

Kamar Tidur: 2

Kamar Mandi: 1

Spesifikasi Teknis

a. Atap
Metal Roof

b. Dinding
Batako / Bata ringan, Plester, Aci, Cat

c. Lantai & Pondasi
Keramik 40x40 & Batu Gunung (Menerus)


Peta Lokasi


Kantor Pemasaran

Komplek Roemah Alam Kasturi No. C8 Kel/Desa. Syamsudin Noor Kec.Landasan Ulin Kota Banjarbaru Prov Kalimantan Selatan no. C8 KALIMANTAN SELATAN, KOTA BANJARBARU, Landasan Ulin, Syamsudin Noor

Telp : 081247206225

Email : karyabanuapersada@gmail.com

Website :