ID Lokasi : MTP0520122020T001
KALIMANTAN SELATAN, KAB BANJAR, Martapura, Bincau
CITRA PERDANA ABADI
PERKUMPULAN ASOSIASI PENGEMBANG PERUMAHAN DAN PERMUKIMAN SELURUH INDONESIA
(APERSI)
Subsidi : 1 Unit
Terjual Subsidi : 6 Unit
Komersil : 0 Unit
Terjual Komersil : 3 Unit
Lihat Siteplan Digitalkomplek waluni V , Jl. perak bawah no.19 rt.009 rw.002 kelurahan loktabat utara , kota banjarbaru , Kalimantan Selatan no. 0813 KALIMANTAN SELATAN, KOTA BANJARBARU, Banjarbaru Utara, Loktabat Utara
Telp : 081310829887
Email : citraperdana88@gmail.com
Website : citraperdana88.co.id





Harga: Rp 164.000.000
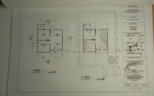
Luas Bangunan: 36m 2
Luas Lahan: 100m 2
Kamar Tidur: 2
Kamar Mandi: 1
a. Atap
rangka atap baja ringan, atap model minimalis flat 2020 tebal 0,3
b. Dinding
batako plester aci dan dinding beton bertulang
c. Lantai & Pondasi
keramik ukuran 50 x 50 merek platinum kualitas super & batu gunung
komplek waluni V , Jl. perak bawah no.19 rt.009 rw.002 kelurahan loktabat utara , kota banjarbaru , Kalimantan Selatan no. 0813 KALIMANTAN SELATAN, KOTA BANJARBARU, Banjarbaru Utara, Loktabat Utara
Telp : 081310829887
Email : citraperdana88@gmail.com
Website : citraperdana88.co.id