ID Lokasi : MTP0520362025T005
KALIMANTAN SELATAN, KAB BANJAR, Martapura, Tungkaran
PT GRIYA PRIMA TEKNIK
REAL ESTATE INDONESIA
(REI)
Subsidi : 8 Unit
Terjual Subsidi : 23 Unit
Komersil : 0 Unit
Terjual Komersil : 0 Unit
Lihat Siteplan DigitalJl. A. Yani Km. 38,5 no. 07 KALIMANTAN SELATAN, KAB BANJAR, Martapura, Sekumpul
Telp : 082353542220
Email : griyaprimateknik@gmail.com





Harga: Rp 182.000.000
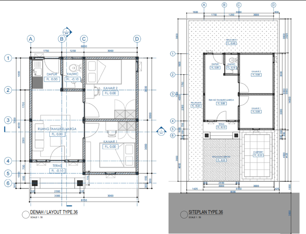
Luas Bangunan: 36m 2
Luas Lahan: 104m 2
Kamar Tidur: 2
Kamar Mandi: 1
a. Atap
Multi Roof
b. Dinding
Bata & semen di plester
c. Lantai & Pondasi
Keramik & Batu Gunung
Jl. A. Yani Km. 38,5 no. 07 KALIMANTAN SELATAN, KAB BANJAR, Martapura, Sekumpul
Telp : 082353542220
Email : griyaprimateknik@gmail.com