ID Lokasi : MTR0410032025T001
NUSA TENGGARA BARAT, KOTA MATARAM, Sekarbela, Jempong Baru
PT ZAFIRA ALANA YUDYA
PERKUMPULAN ASOSIASI PENGEMBANG PERUMAHAN DAN PERMUKIMAN SELURUH INDONESIA
(APERSI)
Subsidi : 0 Unit
Terjual Subsidi : 0 Unit
Komersil : 31 Unit
Terjual Komersil : 6 Unit
Lihat Siteplan Digital




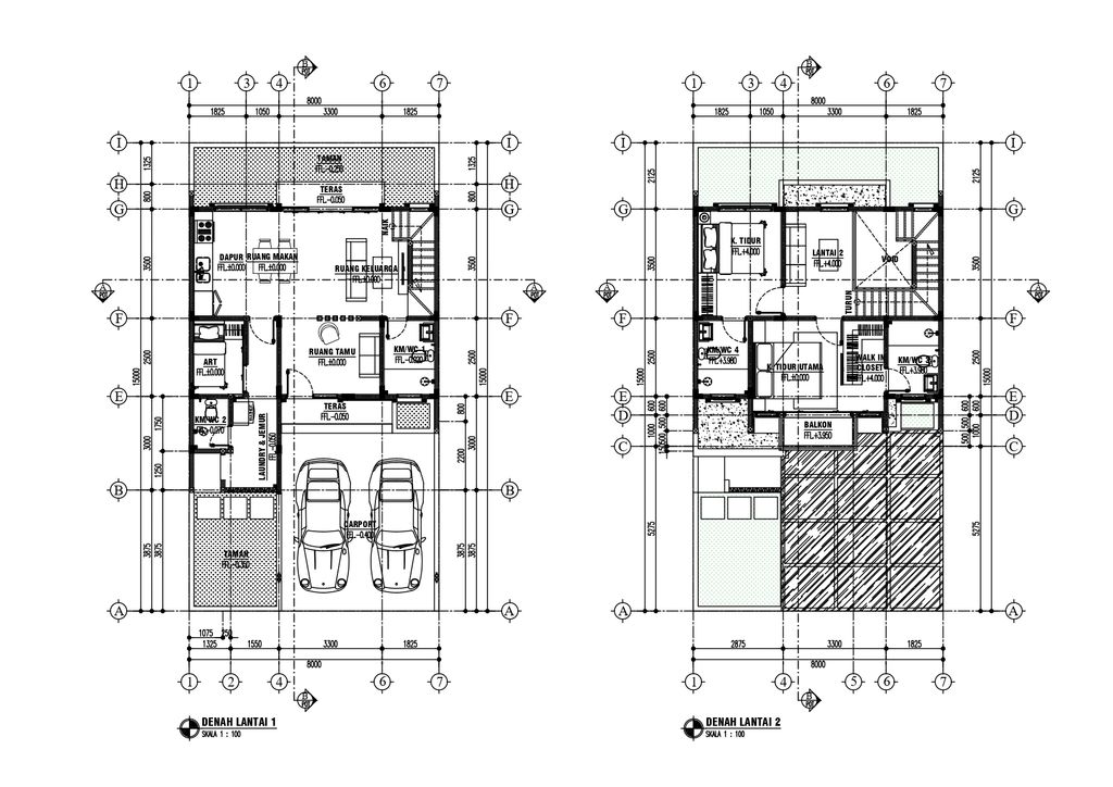
Harga: Rp 700.000.000
Luas Bangunan: 100m 2
Luas Lahan: 120m 2
Kamar Tidur: 3
Kamar Mandi: 4
a. Atap
Rangka Atap:Baja Ringan, Penutup Atap :Bitumen (Maxxi Charcoal)
b. Dinding
Pas. Bata Finish Cat
c. Lantai & Pondasi
Granit 80x80 & Foot Plat dan Batu Kali


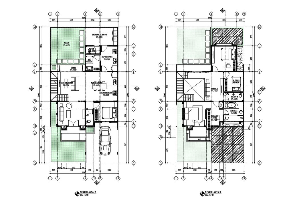
Harga: Rp 1.400.000.000
Luas Bangunan: 200m 2
Luas Lahan: 230m 2
Kamar Tidur: 5
Kamar Mandi: 4
a. Atap
Rangka Atap ;Baja Berat / IWF, Penutup Atap; Bitumen (Maxxi Charcoal)
b. Dinding
Dinding Pas. Bata Finish Cat
c. Lantai & Pondasi
Granit 80x80 & Foot Plat dan Batu Kali